Grundstücksplan mit Pool und großer Garage

3928 sq ft
365 m²

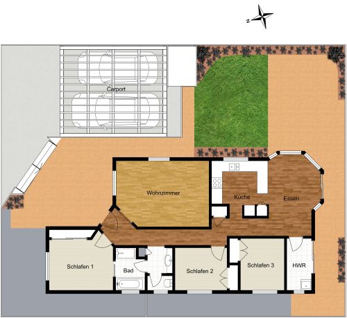
Sie werden diesen Grundstücksplan mit Pool und großer Garage lieben. Das Innere des Hauses verfügt über ein großes Wohnzimmer mit einem angeschlossenen separaten Familienzimmer, das mit einem auffälligen Naturholzboden ausgestattet ist. Die Küche ist mit hellen weißen Fliesen und L-förmigen schwarzen Arbeitsplatten ausgestattet. Eine Waschküche befindet sich direkt hinter der Küche. Neben drei Schlafzimmern gibt es ein zusätzliches Zimmer, das als weiteres Schlafzimmer oder Arbeitszimmer genutzt werden kann. Die Dreifachgarage öffnet sich zu einer schönen Auffahrt aus Ziegeln mit Rasen auf beiden Seiten davon. Der Hinterhof ist mit seinem glitzernden, nierenförmigen Pool, der gemauerten Terrasse und der üppigen Landschaftsgestaltung, die die Privatsphäre und den visuellen Reiz des Grundstücks verbessert, perfekt für die Unterhaltung. Auf der anderen Seite des Hauses gibt es eine weitere gemauerte Terrasse und einen Schuppen, der viel Stauraum für Werkzeuge und Gartengeräte bietet.


Hergestellt von
Lizzy Thomas | 3 Storeys

Ähnliche Grundrisse


Mehr von diesem Anbieter