Offener Grundriss für Küche und Esszimmer

465 sq ft
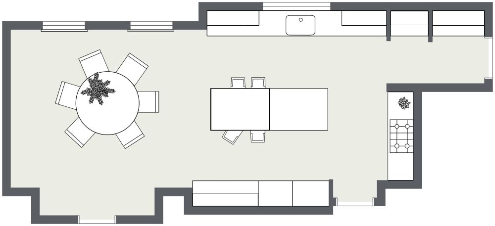
43 m²

Dieser offene Grundriss für Küche und Esszimmer verfügt über eine Reihe von Merkmalen. Es gibt drei Küchentheken, Unter- und Oberschränke, einen Herd mit einem an der Wand montierten Kamin, ein Spülbecken und einige Regale, falls Sie Ihr schönes Porzellan ausstellen möchten. Außerdem gibt es in der Mitte eine Kochinsel, die Ihnen mehr Arbeitsfläche und Stauraum bietet. Diese Insel kann auch als Frühstücksecke dienen, wenn Sie ein paar Stühle um sie herum stellen. Es gibt einen Essbereich mit einem runden Tisch und sechs bequemen Stühlen mit Griffen. Der Küchenboden ist in einem warmen Rotbraun gehalten, während die Möbel und die Arbeitsflächen in einem kontrastreichen Hellgrau gehalten sind. Drei Fenster an einer der Wände sorgen für viel natürliches Licht. Insgesamt hat dieser Grundriss etwas sehr Einladendes an sich.


Hergestellt von
Kitchen Designs

Ähnliche Grundrisse


Mehr von diesem Anbieter