Layout für eine L-förmige Galeerenküche

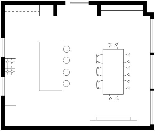
Dieser Layout für eine L-förmige Galeerenküche mit Marmor-Arbeitsplatten, saphirblauen Schränken und moderner goldener Pendelleuchte ist sowohl funktional als auch ästhetisch ansprechend. Großzügige Arbeitsflächen erstrecken sich über zwei Wände und umgeben einen Gasherd mit Abzugshaube und ein weißes Doppelwaschbecken mit goldenem Wasserhahn, der die Leuchten im gleichen Farbton ergänzt. Auf der anderen Seite des Raums befinden sich noch mehr Arbeitsflächen und Schränke, die als Bar oder als Treffpunkt für Gäste vor dem Essen dienen können. Hier können Sie all Ihre Küchenutensilien problemlos aufbewahren. Zusätzlich steht Ihnen auf der Arbeitsplatte zusätzliche Fläche für dekorative Grünpflanzen oder Kochutensilien zur Verfügung. Ein Geschirrspüler erleichtert die Reinigung nach dem Essen und die leicht zu reinigenden Oberflächen sorgen dafür, dass Ihre Küche immer in neuem Glanz erstrahlt.

Hergestellt von
Kitchen Designs
119 sq ft
11 m2
1 Etage

Dieser Grundriss kann angepasst werden.

Dieses Projekt bearbeiten

Möchten Sie diesen Grundriss bearbeiten oder einen eigenen erstellen?

Download App

Ähnliche Grundrisse


Mehr von diesem Anbieter