Grundriss für eine skurrile und farbenfrohe 4-Zimmer-Wohnung

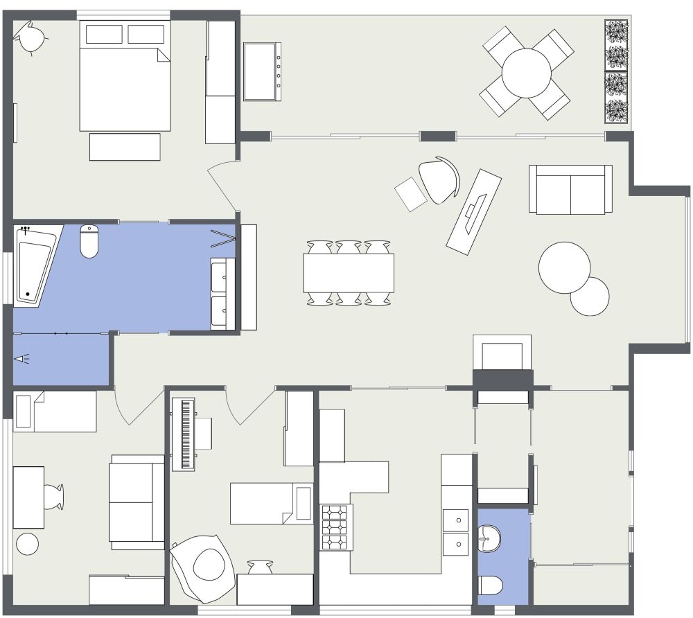
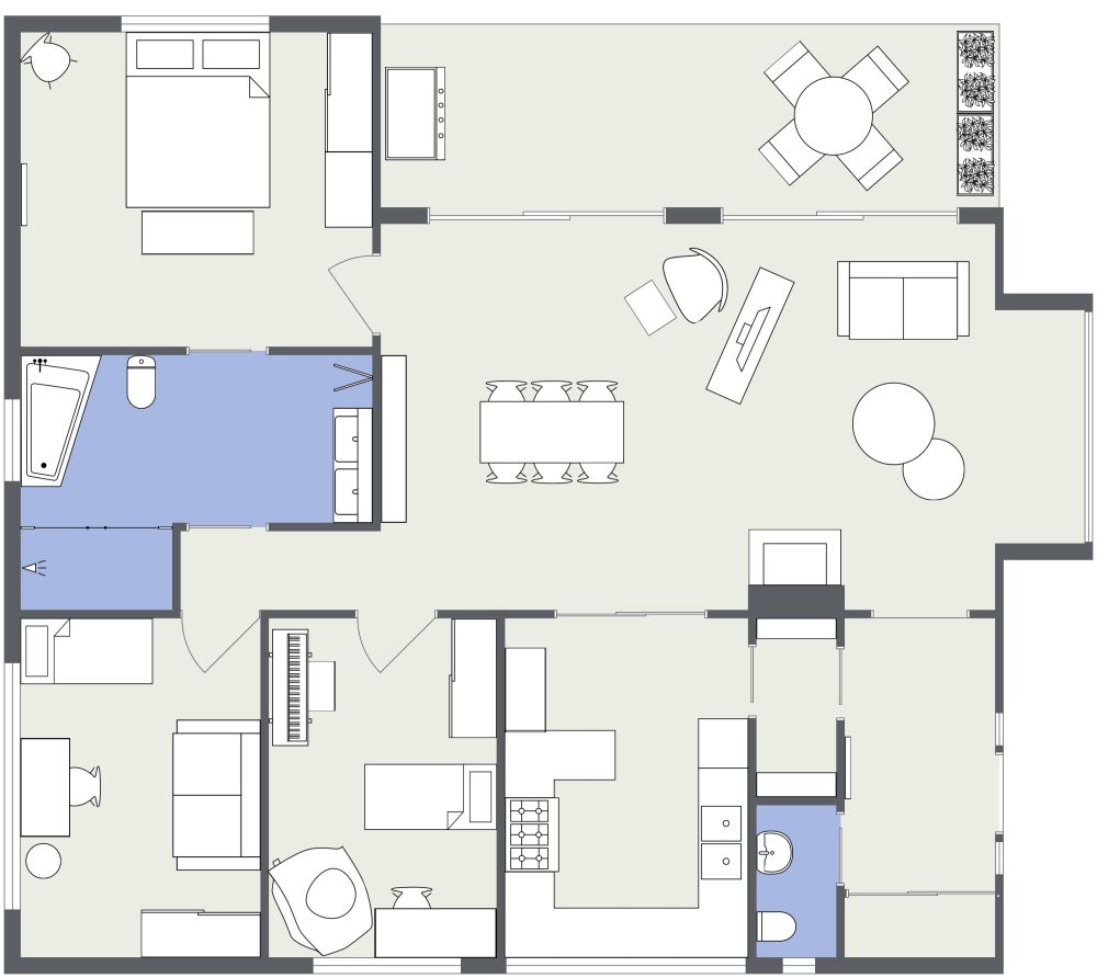
Dieser Grundriss für eine skurrile und farbenfrohe 4-Zimmer-Wohnung enthält viele lustige Ideen und helle Details. Schauen Sie sich die fröhliche Eingangshalle mit großer Garderobe oder Drop-Zone an; dieser Bereich umfasst zudem ein bequemes Pulverbad mit buntgefliesten Wänden sowie Boden. Vom Eingangsbereich aus führt Sie eine bogenförmige Öffnung in den Wohn- und Essbereich mit großen Fenstern, welche diesen Raum hell und freundlich machen. Ein eingebauter Kamin sorgt für eine warme Atmosphäre. Die breiten Doppeltüren der Küche bieten Flexibilität – öffnen oder schließen Sie diese, wenn Sie einen privateren Kochbereich bevorzugen. Die G-förmige Arbeitsplatte bietet Platz für alle Ihre Lieblingsgeräte und bietet viel Arbeitsfläche. Ein flexibler Raum neben der Küche kann als Speisekammer oder zur Aufbewahrung von Rezeptbüchern genutzt werden. Das geräumige Hauptschlafzimmer ist mit einem Queensize-Bett und großen Schränken ausgestattet, doch sind in diesem Raum viele andere Möbelanordnungen möglich. Eine Taschentür bietet direkten Zugang zu einem großen Badezimmer. Zwei weitere Schlafzimmer bieten zusätzliche Möbel- und Einrichtungsoptionen.

Hergestellt von
Franziska Voigt
1269 sq ft
118 m2
1 Etage
3 Schlafzimmer
1 Badezimmer
1 Toilette

Dieser Grundriss kann angepasst werden.

Dieses Projekt bearbeiten

Möchten Sie diesen Grundriss bearbeiten oder einen eigenen erstellen?

Download App

Ähnliche Grundrisse


Mehr von diesem Anbieter