Küchenzeile mit blauen Akzenten

294 sq ft
27 m²

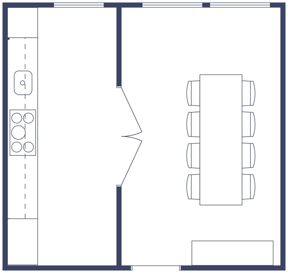
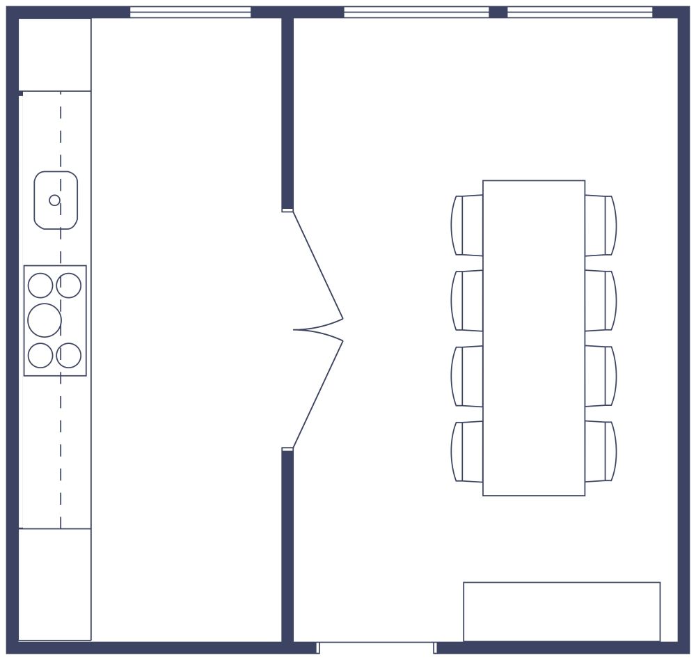
Das blau-weiße Dekor dieser Küchenzeile mit blauen Akzenten vermittelt ein frisches Gefühl. Die Küche und der Essbereich sind durch eine Doppeltür getrennt, so dass man sich leicht zwischen den beiden Räumen bewegen kann. Die Küche hat eine lange, weiße Arbeitsplatte mit Ober- und Unterschränken. Außerdem gibt es einen Herd mit fünf Kochfeldern und eine Spüle. An dem einen Ende steht ein blauer Kühlschrank, am anderen Ende ein hoher, blauer Backofen. An einer Wand befindet sich ein raumhohes Fenster, das viel natürliches Licht hereinlässt. Der Essbereich ist größer als der Küchenbereich und verfügt über zwei bodentiefe Fenster. In diesem Bereich können Sie einen langen Esstisch mit acht Stühlen sowie ein Sideboard aufstellen. Insgesamt nutzt dieser Grundriss den vorhandenen Platz gut aus und wirkt einladend.


Hergestellt von
Kitchen Designs

Ähnliche Grundrisse


Mehr von diesem Anbieter