Fitness-Studio-Grundrisse richtig planen: Größe, Zonen und Anforderungen
Grundrisse für Fitness-Studios helfen Ihnen, Ihr Studio optimal zu gestalten. Eine klare Planung unterstützt effiziente Abläufe, sorgt für Komfort und schafft die ideale Umgebung für motivierte Mitglieder.

Der Grundriss Ihres Fitness-Studios, Gyms oder Fitnessclubs ist entscheidend für Wellness und Zufriedenheit Ihrer Kunden. Ein guter Fitness-Studio-Grundriss wirkt geräumig, offen und geradezu motivierend. Ein schlechtes Design kann hingegen zu beengten Bereichen, Sicherheitsproblemen und unmotivierten Kunden führen. Daher ist es wichtig, dass Sie gut recherchieren und einen erstklassigen Gym-Grundriss erstellen.
Arten von Fitness-Studios

Zunächst einmal sollten Sie bestimmen, um welche Art von Fitness-Studio es sich handelt. Ein Fitness-Studio kann unter anderem ein Heim-Fitness-Studio, ein Personal-Training-Studio, ein Studio in Wohnungen oder Wohnanlagen, ein Hotel-Fitnesscenter, ein aktivitätsspezifisches Fitness-Studio (z.B. Pilates, Barre-Workout, CrossFit) oder etwa ein Fitnessclub mit einer großen oder geringeren Anzahl von Mitgliedern sein. Vielleicht haben Sie sogar ein völlig neues Konzept von einem Trainingsstudio entwickelt, das Sie auf den Markt bringen möchten!
Größe
Beim Ansehen inspirierender Grundrisse sollten Sie zunächst die Größenordnung Ihres Fitnessstudios abschätzen. Dabei spielt die Art des Studios eine entscheidende Rolle.
Ein Yogastudio benötigt in der Regel weniger Platz pro Person als ein Trainingsstudio mit vielen Geräten für betreutes Kraft- oder Funktionstraining. Ein Home Gym ist wiederum deutlich kleiner als ein klassisches Fitnesscenter.
Es gibt zwei gängige Methoden, um den passenden Größenbereich zu ermitteln:
1. Flächenbedarf nach Funktionsbereichen
Ordnen Sie den wichtigsten Bereichen Ihres Studios einen Raumbedarf zu, zum Beispiel Trainingsfläche, Umkleiden, Lager, Empfang und Sanitärbereiche. Addieren Sie diese Flächen, um die ungefähre Gesamtgröße zu bestimmen (siehe unsere Liste unten).
2. Flächenbedarf pro Mitglied
Alternativ können Sie den Platzbedarf pro Nutzer kalkulieren. Als Faustregel gilt, dass der Trainingsbereich etwa 0,9–1,5 m² pro Person einplanen sollte. Hinzu kommen Flächen für Empfang, Lager, Toiletten und andere Gemeinschaftsbereiche.
Große Fitnessstudios verfügen häufig über mehr als 2.500 m² Fläche.
Bei 100 Mitgliedern kann ein Yogastudio mit einem Grundriss ab etwa 90 m² starten.
Bei 1.000 Mitgliedern sollten Sie mit mindestens 900 m² rechnen.

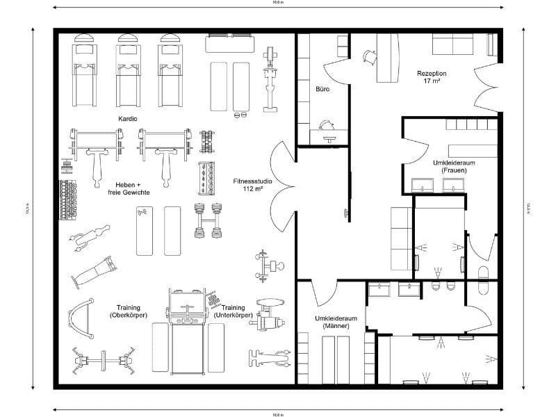
Wichtige Aktivitätsbereiche

Wenn Sie die Grundrisse für Fitness-Studios durchsehen und Ihren individuellen Entwurf entwickeln, müssen Sie wissen, welche Aktivitäten Ihr Gym anbieten soll. Hier ist eine Liste typischer Studioeinrichtungen. Welche werden Teil Ihres Grundrisses sein?
- Rezeption/Empfangsbereich: Häufig ein Kundenschalter oder Schreibtisch, wo Kunden begrüßt und Zahlungen abgewickelt werden. Dazu könnte ein Wartebereich gehören und ein Büro, in dem neue Mitglieder angemeldet werden.
- Fitnessbereiche: Zu den Fitnessbereichen können offene Trainingsbereiche gehören, zum Beispiel ein Aufwärm-/Dehnungsbereich, ein Cardiobereich (Laufband, Ellipsentrainer usw.), freie Gewichte und Krafttrainingsgeräte. Zu dieser Kategorie gehören auch Gruppenübungsräume für Yoga, Pilates, Spinning, Aerobic, Step und andere Kurse.
- Umkleideräume und Dusche: Größere Studios verfügen über getrennte Umkleideräume und Duschen. Einige Studios der gehobenen Klasse bieten auch Spa-ähnliche Annehmlichkeiten wie einen Whirlpool, ein Dampfbad oder eine Sauna. Im Gegensatz dazu kann ein kleines Trainingsstudio einen gemeinsamen Umkleide- und Duschbereich bieten. Ablage- oder Schließfächer für persönliche Gegenstände können direkt im Trainingsbereich angebracht sein.
- Büros: In größeren Fitness-Studios gibt es in der Regel mehrere Büros für Management und Mitarbeiter.
- Getränkebar, Snacks, Shop: Manche Fitness-Studios erzielen zusätzliche Einnahmen, indem sie etwa Snacks, Säfte, Shakes und Smoothies anbieten. In einem eigenen Shop können unter anderem auch Kleidung und Wellnessartikel verkauft werden.
- Andere Einrichtungen: Etwa Pools, Trainingsareale im Freien, Sportplätze usw.
- Lagerung, Depot: Müssen Step-Aerobic-Zubehör, Fitnessmatten oder Yoga-Zubehör wie Blöcke und Gurte aufbewahrt werden? Planen Sie auf jeden Fall passenden Stauraum ein.
Sehen Sie sich Grundrissbeispiele an und experimentieren Sie mit Ideen für das Fitness-Studio. Dabei können Sie die Anordnung der wichtigsten Geräte planen. Für die Positionierung von Cardiogeräten (etwa Laufbänder und Ellipsentrainer) sind Rasterpläne nützlich. Sie sind übersichtlich, einfach zu bearbeiten und erlauben es, genug Bewegungsraum rund um die Geräte einzuplanen. Denken Sie auch an mögliche Engpässe. Ein Gang etwa könnte verstellt werden von Personen, die auf einen Fitnesskurs warten.

Sicherheit
Überblick und Sichtlinien
Sicherheit ist ein entscheidender Faktor bei jedem Gym-Grundriss. Das Personal sollte möglichst alle Geräte und Trainingsbereiche im Blick haben. Achten Sie daher auf nicht einsehbare Winkel oder abgeschlossene Räume, die die Übersicht erschweren.
Stolperfallen vermeiden
Geräte, die zu eng stehen oder direkt um Ecken platziert sind, erhöhen das Verletzungsrisiko. Planen Sie ausreichend Bewegungsfläche ein, damit sich Trainierende frei und sicher bewegen können.
Auch Stromkabel stellen eine potenzielle Stolperfalle dar. Denken Sie frühzeitig an die elektrische Versorgung Ihrer Fitnessgeräte und verlegen Sie Leitungen möglichst im Boden oder in dafür vorgesehenen Kanälen, statt sie über den Bodenbelag zu führen.
Raumklima und Beleuchtung
Eine gute Raumluftqualität ist besonders wichtig, wenn viele Menschen gleichzeitig trainieren. Überlegen Sie daher, wie Lüftung, Klimaanlage, Fenster und Ventilatoren sinnvoll in den Grundriss integriert werden können.
Eine durchdachte Beleuchtung erhöht nicht nur die Sicherheit, sondern trägt auch wesentlich zum Wohlbefinden der Trainierenden bei.
Gesetzliche Vorgaben und Anforderungen
Bau- und Brandschutzvorschriften beachten
Bevor Sie Ihren Grundriss fertigstellen, sollten Sie sich von erfahrenen Fachleuten beraten lassen. Der Bauplan muss den örtlichen Bau- und Brandschutzvorschriften entsprechen.
Je nach Region gelten konkrete Vorgaben, zum Beispiel in Bezug auf:
- Belegungsdichte
- Anzahl der Toiletten
- Anzahl und Breite von Türen
- Breite von Treppen, Gängen und Korridoren
Auch Brandschutzsysteme wie Sprinkleranlagen und Feuermelder können vorgeschrieben sein. Diese Anforderungen sollten frühzeitig in die Planung einbezogen werden.
Der Grundriss als Planungs- und Kommunikationswerkzeug
Wenn Sie sich für Fitness interessieren und ein eigenes Studio eröffnen möchten, ist die Ausarbeitung eines Grundrisses ein zentraler Teil des Planungsprozesses. Er hilft Ihnen dabei, Ihre Ideen zu strukturieren, den Flächenbedarf realistisch einzuschätzen und die Anordnung der Geräte zu durchdenken.
Darüber hinaus ist der Grundriss eine wichtige Grundlage für Ihren Geschäftsplan und ein hilfreiches Werkzeug bei Gesprächen mit Architekten, Bauunternehmern und Immobilienexperten.

Erstellen Sie Grundrisse im Handumdrehen
Mit RoomSketcher können Sie Grundrisse für jedes Projekt zeichnen, anpassen und visualisieren:
- Zeichnen Sie präzise 2D und 3D Grundrisse in wenigen Minuten
- Passen Sie Möbel, Materialien, Farben und Beschriftungen individuell an
- Arbeiten Sie online oder offline – Ihre Projekte synchronisieren sich automatisch in der Cloud
- Visualisieren Sie Ihre Grundrisse mit 3D Fotos, 360 Ansichten und interaktivem Live 3D
Schließen Sie sich über 10 Millionen Menschen an, die bereits professionelle Grundrisse mit RoomSketcher erstellen.
Verwandte Artikel

Grundrisse für Grundstückspläne: Elemente, Maßstab und Planung
Grundrisse für Grundstückspläne zeigen, wie Gebäude, Grenzen und bauliche Anlagen auf einem Grundstück angeordnet sind. Der Artikel erklärt die wichtigsten Bestandteile eines Lageplans und worauf Sie bei der Erstellung achten sollten. So erhalten Sie eine fundierte Grundlage für Planung und Dokumentation.

Grundrisse für Büros: Planung, Flächenbedarf und Anforderungen
Ein durchdachter Bürogrundriss steigert Produktivität und Mitarbeiterzufriedenheit. Erfahren Sie, wie Sie Arbeitsbereiche, Konferenzräume und Gemeinschaftszonen optimal planen, um ein funktionales und motivierendes Arbeitsumfeld zu schaffen. Mit den richtigen Ideen gelingt eine effiziente und moderne Bürogestaltung.

Café-Grundrisse richtig planen: Zonen, Abläufe und Anforderungen
Die Gestaltung des Grundrisses spielt eine entscheidende Rolle für den Erfolg eines Cafés. Ein gutes Layout sorgt für reibungslose Abläufe und ein angenehmes Kundenerlebnis. In diesem Beitrag erfahren Sie, wie Grundrisse für Cafés effizient geplant und kreativ umgesetzt werden können.