Was einen guten Restaurant-Grundriss ausmacht
Grundrisse für Restaurants sind die Grundlage für eine funktionale Raumaufteilung und effiziente Arbeitsabläufe. In diesem Artikel erfahren Sie, wie Gastraum, Küche und Servicebereiche sinnvoll geplant und aufeinander abgestimmt werden.

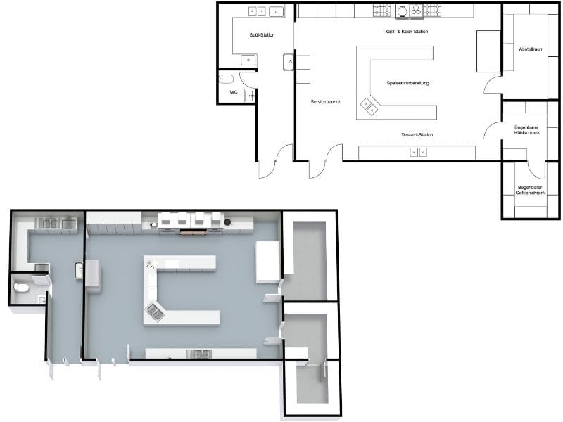
Ein Restaurant-Grundriss bietet einen nützlichen Überblick über die Räumlichkeiten – er zeigt die Wände, Fenster und Türen, Gastronomiegeräte, Möbel und Zubehör.
Der Grundriss kann 2D sein, um das allgemeine Layout zu zeigen, oder 3D, um die geplanten Materialien und Farben darzustellen.
Ganz gleich, ob Sie von Ihrem ersten Restaurant träumen oder ein bestehendes renovieren wollen, ist ein Grundriss eine ausgezeichnete Idee: Er hilft dabei, Ihre Layout- und Designideen zu konkretisieren und ihnen eine klare Kontur zu geben. Das ideale Ergebnis ist ein Ort, der einladend und ansprechend für Ihre Kunden, effizient für Ihre Mitarbeiter und rentabel für Sie ist.
Beachten Sie, dass im Rahmen des Genehmigungsverfahrens meist ein Grundriss verlangt wird. Für eine effektive Planung können Sie selbst einen Grundriss erstellen. Ziehen Sie dennoch einen Fachmann hinzu, der mit den ortsbezogenen Vorschriften vertraut ist und Sie bei der Feinabstimmung und der endgültigen Gestaltung berät.
Bereiche eines Restaurants
Sehen wir uns die gängigsten Bereiche eines Restaurant-Grundrisses an. Zunächst den Front of House-Bereich, also jenen Bereich, mit dem die Kunden in Berührung kommen. Danach sehen wir uns die Back of House-Bereiche an, also jene, zu denen Gäste keinen Zugang haben.

Typische Front of House-Bereiche
Eingang und Wartebereich
Der Bereich, in dem Gäste Ihr Restaurant betreten und gegebenenfalls auf einen Sitzplatz warten. Hier kann auch ein Empfangspult stehen.
Essbereich
Der Essbereich umfasst Sitzplätze im Innenbereich und eventuell auf einer Terrasse.
In der Regel sollten Sie Tische für verschiedene Gruppen bereitstellen, von Zweier- über Vierer- und Familientische bis hin zu Tischen für größere Personengruppen.
Quadratische Tische bieten am meisten Kombinationsmöglichkeiten.
Aber auch rechteckige Tische ermöglichen flexible Gruppierungen.
Andere Tischtypen sind runde Tische, Steh- oder Bistrotische, Bartische und vielleicht auch Tische in Separees.

Bars oder Servicetheken
Viele Restaurants verfügen über einen Barbereich, in dem die Gäste Speisen und Getränke bestellen und an einer Theke oder an Stehtischen genießen können.
Sie können auch eine Servicetheke einrichten, an der Kunden Speisen zum Mitnehmen bestellen und abholen können.

Zahlungs- oder POS-Stationen
Je nach Ihrem Bestell- und Zahlungssystem können Sie im gesamten Restaurant Stationen einrichten, an denen die Kellner Bestellungen eingeben oder Quittungen ausdrucken können.
Sanitäre Anlagen
Abgesehen von Restaurants mit kleinem Gastraum müssen je nach Größe eine bestimmte, nach Geschlechtern getrennte, Anzahl an Toiletten eingeplant werden. Auch für Mitarbeitertoiletten gibt es ortsbezogene Vorschriften, mit denen Sie sich ebenfalls vertraut machen sollten.
Back of House-Bereiche:

- Küche und Vorbereitung – Hier werden die Speisen vorbereitet, zubereitet und angerichtet.
- Kühl- und Lagerräume – Die meisten Restaurants verfügen über Kühlschränke, Gefrierschränke und Lagerräume für Lebensmittel und Kochzubehör.
- Geschirrspülen und Müll – Kochutensilien und Geschirr müssen in einem eigens ausgestatteten Spülbereich gewaschen und getrocknet werden. Sie benötigen auch ein effektives Abfallmanagement, mit Einrichtungen sowohl im Küchen- als auch im Außenbereich.
- Büros und Pausenräume – In größeren Restaurants benötigen Sie ein oder mehrere Büros oder Arbeitsbereiche für das Management und vielleicht einen Pausenbereich für das Personal.
Tipps für den Entwurf

Flächen sinnvoll aufteilen
Bei der Durchsicht von Mustergrundrissen und der Ausarbeitung Ihres eigenen Entwurfs sollten Sie zunächst die Flächenverteilung im Blick behalten. In vielen Restaurants entfallen etwa zwei Drittel der Fläche auf Front-of-House-Bereiche wie Empfang, Speisesaal und Sanitäranlagen. Das verbleibende Drittel wird für Back-of-House-Bereiche wie Küche, Lager und Nebenräume genutzt.
Diese Aufteilung dient als Orientierung und kann je nach Konzept angepasst werden.
Tischanordnung und Sitzabstände planen
Die Anordnung der Tische und die Abstände dazwischen hängen stark von der Art Ihres Restaurants ab. Quadratische Tische bieten viele Kombinationsmöglichkeiten. Übliche Tischgrößen sind 70 × 70 cm für Zweiertische und 80 × 80 cm für Vierertische. Rechteckige Tische sollten mindestens 70 cm breit sein, da pro Gast in der Regel ein Platzbedarf von 70–80 cm eingeplant wird.
Experimentieren Sie mit verschiedenen Varianten, um ein Layout zu finden, das zu Ihrem gastronomischen Konzept passt.
Für eine bequeme Nutzung sollten Sie außerdem folgende Abstände einhalten:
- mindestens 80 cm vom Tisch zur Wand, oder
- 45 cm zwischen Stuhllehne und Wand oder einem anderen Stuhl
- Bänke benötigen weniger Platz: Banktiefe plus ca. 20 cm
Bewegungsflüsse und Arbeitsabläufe optimieren
Achten Sie besonders auf die Bewegungsflüsse in Ihrem Restaurant-Grundriss. Analysieren Sie die häufigsten Arbeitsabläufe und gestalten Sie diese so effizient wie möglich. Warme Speisen sollten schnell zu den Gästen gelangen, daher sind kurze Wege zwischen Küche und Gästetischen entscheidend.
Mobiles Kassieren kann die Laufwege und Laufzeiten des Servicepersonals deutlich reduzieren. Auch in der Küche sollten Arbeits- und Materialflüsse klar strukturiert sein. Planen Sie ein zeitgemäßes Abfallmanagement, indem Sie Abfallbehälter dort platzieren, wo Abfälle entstehen. Bioabfälle sollten regelmäßig aus Bereichen entfernt werden, in denen mit Lebensmitteln gearbeitet wird. Lager- und Kühlräume sollten für das Küchenpersonal schnell und unkompliziert erreichbar sein.

Barrierefreiheit
Denken Sie bei der Gestaltung Ihres Restaurants auch an Menschen mit Beeinträchtigungen.
Zur Barrierefreiheit gehört, unter anderem, ein rollstuhlgerechter Zugang, breite Gänge, zugängliche Tische und Barbereiche, eine barrierefreie Toilette und vielleicht barrierefreie Arbeitsbereiche für Ihr Personal.
Die Anforderungen sind in den länderspezifischen Behindertengleichstellungsgesetzen festgelegt und in Richtlinien wie etwa DIN 18040-1 detailliert beschrieben.
Vorschriften und gesetzliche Anforderungen
Im Rahmen des Genehmigungsverfahrens für ein Restaurant müssen Sie meist einen Grundriss einreichen. Informieren Sie sich daher unbedingt über die ortsbezogenen Gesundheits-, Bau- und Hygienevorschriften, die für Ihr Vorhaben gelten. Die Zusammenarbeit mit Fachleuten auf diesem Gebiet lohnt sich häufig.
Entwerfen Sie Ihren perfekten Grundriss
Ideen für den Grundriss Ihres Traumrestaurants auszuprobieren, kann Spaß machen und spannend sein. Bei guter Planung können Sie einen Grundriss entwerfen, der Ihren Gästen ein außergewöhnliches Erlebnis gewährleistet und es Ihren Mitarbeitern ermöglicht, Ihren Gästen einen hervorragenden Service und köstliche Gerichte zu bieten.

Erstellen Sie Grundrisse im Handumdrehen
Mit RoomSketcher können Sie Grundrisse für jedes Projekt zeichnen, anpassen und visualisieren:
- Zeichnen Sie präzise 2D und 3D Grundrisse in wenigen Minuten
- Passen Sie Möbel, Materialien, Farben und Beschriftungen individuell an
- Arbeiten Sie online oder offline – Ihre Projekte synchronisieren sich automatisch in der Cloud
- Visualisieren Sie Ihre Grundrisse mit 3D Fotos, 360 Ansichten und interaktivem Live 3D
Schließen Sie sich über 10 Millionen Menschen an, die bereits professionelle Grundrisse mit RoomSketcher erstellen.
Verwandte Artikel

Grundrisse für Büros: Planung, Flächenbedarf und Anforderungen
Ein durchdachter Bürogrundriss steigert Produktivität und Mitarbeiterzufriedenheit. Erfahren Sie, wie Sie Arbeitsbereiche, Konferenzräume und Gemeinschaftszonen optimal planen, um ein funktionales und motivierendes Arbeitsumfeld zu schaffen. Mit den richtigen Ideen gelingt eine effiziente und moderne Bürogestaltung.

Café-Grundrisse richtig planen: Zonen, Abläufe und Anforderungen
Die Gestaltung des Grundrisses spielt eine entscheidende Rolle für den Erfolg eines Cafés. Ein gutes Layout sorgt für reibungslose Abläufe und ein angenehmes Kundenerlebnis. In diesem Beitrag erfahren Sie, wie Grundrisse für Cafés effizient geplant und kreativ umgesetzt werden können.

Badezimmer richtig planen: Grundrisse, Typen und Maße
Grundrisse für Badezimmer bestimmen, wie funktional und komfortabel ein Bad im Alltag ist. In diesem Artikel erfahren Sie, welche Badtypen und Raumaufteilungen es gibt und wie Sie den passenden Grundriss für Ihre Bedürfnisse finden.