Duplex Plan

1193 sq ft
111 m²
2 Etagen
3 Schlafzimmer
3 Badezimmer

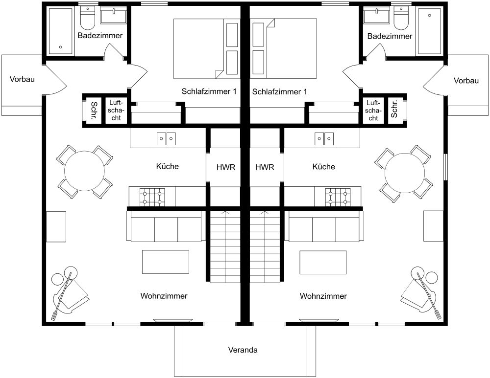
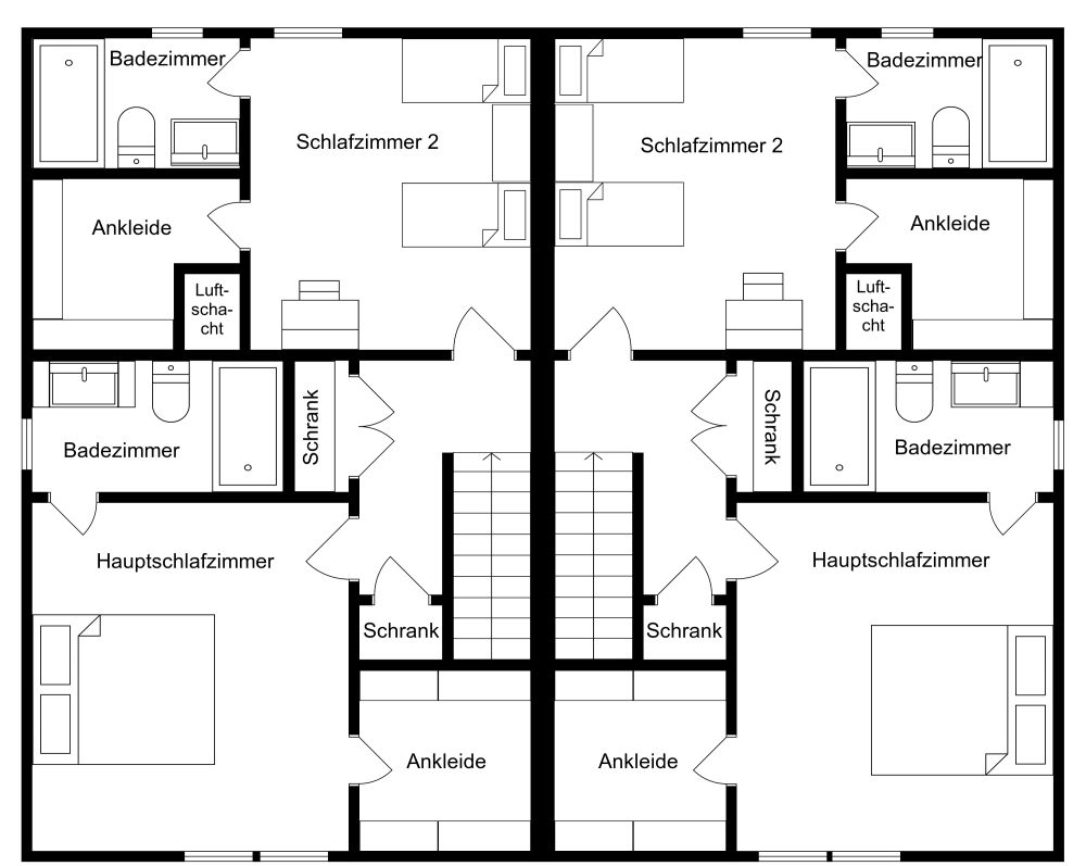
Modern, warm und einladend - Sie werden diese Duplex Plan lieben, die in Bezug auf Stil und Funktionalität keinen Zentimeter Platz verschenkt. Im Erdgeschoss befinden sich auf jeder Seite des Doppelhauses ein Schlafzimmer, ein komplettes Badezimmer und eine Waschküche. Der Hauptwohnbereich besteht aus einer Küche, die nahtlos in den Essbereich und das Wohnzimmer übergeht, das mit einem schicken Kamin ausgestattet ist. Auf jeder Seite des Doppelhauses befindet sich eine kleine Veranda und eine größere gemeinsame Veranda, die mit den beiden Wohnzimmern verbunden ist. Im ersten Stock befinden sich zwei weitere geräumige Schlafzimmer, zwei Vollbäder, ein Wäscheschrank und zwei große Schränke. Helle Holzfußböden im Chevron-Design und dunkle, stimmungsvolle Wände verleihen diesen beiden Häusern ein gemütliches und doch modernes Ambiente.


Hergestellt von
Home Designs

Ähnliche Grundrisse


Mehr von diesem Anbieter