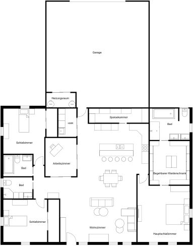
Grundriss für ein Haus mit 3 Schlafzimmern und 3 Badezimmern

2316 sq ft
215 m²
2 Etagen
3 Schlafzimmer
3 Badezimmer

Mit einer langen, schmalen Grundfläche und einer luxuriösen Ausstattung ist dieser Grundriss für ein Haus mit 3 Schlafzimmern und 3 Badezimmern vielleicht genau das, was Sie suchen. Von einem überdachten Eingang und Veranda gelangen Sie in ein komfortables, offenes Raumkonzept für Wohn-, Ess- und Küchenbereich. Stellen Sie Ihre Wohnzimmermöbel um den gemütlichen Kamin herum auf und genießen Sie die Aussicht aus den zahlreichen Fenstern. Ein nahe gelegenes Arbeitszimmer eignet sich perfekt für die Arbeit von zu Hause aus oder kann als Arbeitszimmer oder Fernsehzimmer genutzt werden. Die L-förmige Küche mit einer großen Kochinsel/Frühstücksbar und einer Speisekammer ist ein Traum für Köche/Köchinnen. Eine praktische Tür zur überdachten Veranda macht die Unterhaltung im Freien zum Kinderspiel. Das Hauptschlafzimmer im Erdgeschoss verfügt über einen begehbaren Kleiderschrank und ein eigenes Bad mit Doppelwaschbecken, einer großen Dusche, einem Wäscheschrank und einem eigenen Toilettenraum. Ein angrenzender Hauswirtschaftsraum ist sehr praktisch. Das kleinere zweite Schlafzimmer auf dieser Ebene verfügt über einen begehbaren Kleiderschrank und ein angrenzendes Badezimmer. Im Obergeschoss finden Sie einen kompakten Treppenabsatz, der sich ideal für eine kleine Bibliothek eignet, sowie ein zweites Hauptschlafzimmer mit einem begehbaren Kleiderschrank und einem vollständigen Badezimmer.



Ähnliche Grundrisse


Mehr von diesem Anbieter