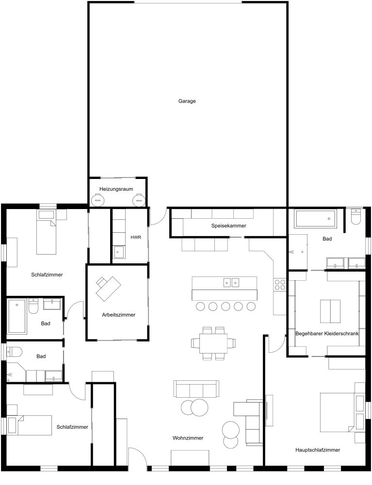
Grundriss für ein Haus mit 3 Schlafzimmern und 1 Arbeitszimmer

2164 sq ft
201 m²
1 Etage
3 Schlafzimmer
3 Badezimmer

Dieser Grundriss für ein Haus mit 3 Schlafzimmern und 1 Arbeitszimmer bietet komfortables Wohnen. Von der Haustür aus betreten Sie den geräumigen Hauptwohnbereich; eine L-förmige Küche mit einer großen Kochinsel/Frühstücksbar bietet viel Platz zum Kochen und zur Bewirtung von Gästen. Köche/Köchinnen werden von der riesigen Speisekammer angezogen – passen Sie die Regale und Schränke Ihren Koch- und Aufbewahrungsbedürfnissen an. Das angrenzende Arbeitszimmer verfügt über 2 große Flügeltüren und kann für Gespräche geöffnet oder für die Privatsphäre geschlossen werden. Alternativ können Sie diesen flexiblen Raum auch als Arbeitszimmer, Jugendzimmer oder Spielzimmer einrichten. Auf der rechten Seite des Grundrisses befindet sich die geräumige Hauptsuite mit einem großen begehbaren Kleiderschrank und einem geräumigen Badezimmer mit Doppelwaschbecken, separater Dusche und Badewanne. Auf der linken Seite des Grundrisses befinden sich zwei weitere Schlafzimmer mit Einbauschränken und Zugang zu zwei separaten Bädern. Eine Waschküche und eine übergroße Garage vervollständigen diesen Grundriss.


Hergestellt von
Barndos

Ähnliche Grundrisse


Mehr von diesem Anbieter