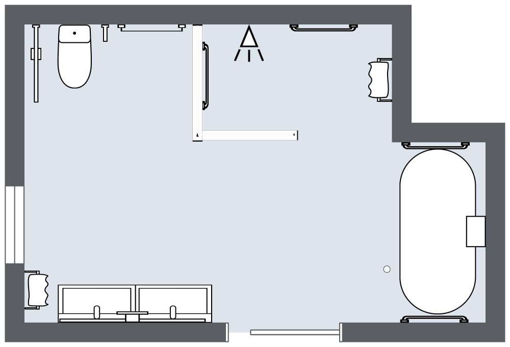
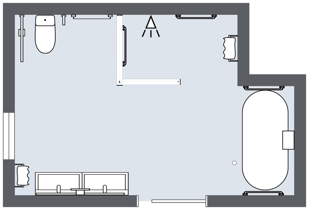
Grundriss für Senioren-Badezimmer

143 sq ft
13 m²

Wenn Sie auf der Suche nach einem barrierefreien Badezimmer sind, das ebenso stilvoll wie funktional ist, dann ist dieser Grundriss für ein Senioren-Badezimmer genau das Richtige für Sie. Die Glasschiebetür führt in einen schönen Raum, der mit grau-weißen Fliesenböden und kühlen, blaugrünen Wänden ausgestattet ist. An einer Wand befinden sich zwei Waschtische mit Waschbecken und schwarzen Arbeitsflächen, und direkt gegenüber liegt die Toilette. Neben der Toilette befindet sich eine begehbare Dusche, die durch eine L-förmige Abtrennung getrennt ist. In der Ecke des Badezimmers befindet sich eine moderne Badewanne mit einer Akzentwand dahinter, in der man sich stilvoll entspannen kann. An der Wand gegenüber der Badewanne befindet sich ein kleines Fenster mit strahlend weißen Fensterläden, die zum modernen Erscheinungsbild des Raumes passen. Verbessern Sie das Aussehen und die Atmosphäre Ihres Hauses mit diesem Grundriss für ein Senioren-Badezimmer.


Hergestellt von
Andrea Platzer

Ähnliche Grundrisse


Mehr von diesem Anbieter