Barrierefreies Badezimmer für Senioren

172 sq ft
16 m²

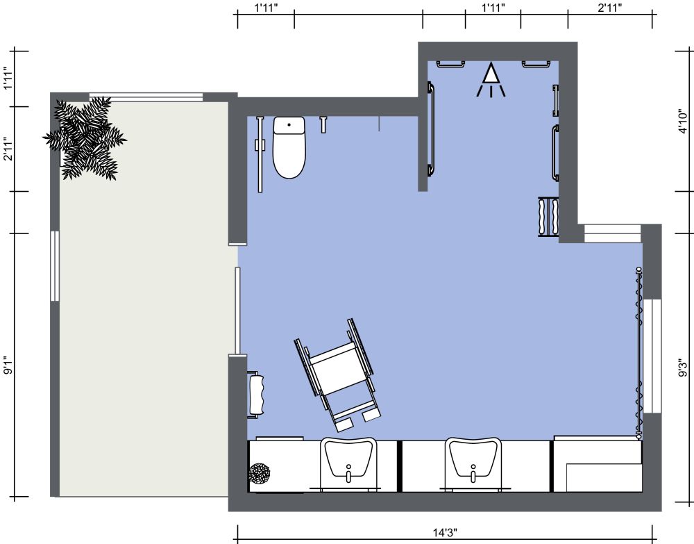
Elegant, raffiniert und kühn - dieses barrierefreie Badezimmer für Senioren lässt Ihr Zuhause wie ein Luxushotel erscheinen. Schlichte schwarze Fliesen, die den Boden und die Dusche bedecken, sind von aufwändig gestalteten schwarzen und weißen Fliesen umgeben, die ein luxuriöses, auffälliges Erscheinungsbild schaffen. Eine lange hölzerne Waschtischplatte mit Schränken darunter zieht sich von Wand zu Wand auf einer Seite des Badezimmers, in dessen Mitte sich zwei Waschbecken befinden. Gegenüber den Waschbecken befinden sich zwei separate Bereiche: einer für die Toilette, der andere für die begehbare Dusche. An der kleinen Wand zwischen der Dusche und den Waschbecken befindet sich ein Fenster. Goldene Leuchten, von denen eine in der Mitte des Raumes hängt, verleihen diesem eleganten Grundriss einen modernen Touch. Tealfarbene Accessoires und Topfpflanzen runden das Bild des Raumes ab und lassen ihn stilvoll und doch gemütlich wirken. Der Aufenthalt in diesem seniorengerechten Badezimmer wird ein Vergnügen sein.


Hergestellt von
Andrea Platzer

Ähnliche Grundrisse


Mehr von diesem Anbieter