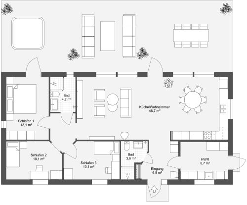
Wohnungsgrundriss mit großer Küche

1202 sq ft
112 m²
1 Etage
3 Schlafzimmer
2 Badezimmer

Der Wohnungsgrundriss mit großer Küche bietet ein durchdachtes und einladendes Wohnkonzept. Der Eingangsbereich führt in einen offenen Wohnraum mit hellem Ambiente. Links liegt ein separates Wohnzimmer, das Ruhe und Privatsphäre schafft. Gegenüber befindet sich der großzügige Essbereich, der nahtlos in die geräumige Küche übergeht. Diese überzeugt mit viel Arbeitsfläche und Stauraum, ideal für alle, die Freude am Kochen haben. Im hinteren Teil der Wohnung liegt das Hauptschlafzimmer mit eigenem Bad sowie ein weiteres Schlafzimmer. Ein drittes Schlafzimmer befindet sich im vorderen Bereich. Alle Schlafräume verfügen über praktische Einbauschränke. Ergänzt wird der Grundriss durch einen Hauswirtschaftsraum mit Arbeitsfläche, zusätzlichen Schränken und separatem Abstellraum, was den Alltag besonders komfortabel macht.


Hergestellt von
Home Designs

Ähnliche Grundrisse


Mehr von diesem Anbieter