Grundriss für offene Küche und Wohnzimmer

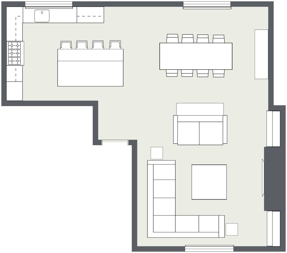
In einem offenen Grundriss können Sie denselben Raum für viele Zwecke nutzen, ohne ihn zu unterteilen. In diesem Grundriss für offene Küche und Wohnzimmer können Sie eine Küche, einen Essbereich und einen Wohnbereich in einem etwa L-förmigen Raum kombinieren. An einem Ende befindet sich die Küche mit einer großen Arbeitsfläche, einem Herd, einem an der Wand befestigten Kamin, einer Spüle und mehreren Schränken. Außerdem gibt es eine Kochinsel mit Sitzgelegenheiten für vier Personen. Gegenüber der Küche befindet sich der Essbereich, der Platz für bis zu acht Personen bietet. An den Essbereich schließt sich der Wohnbereich an, in dem eine L-förmige Couch und ein Sessel stehen. In der Mitte steht ein Couchtisch und an einer Wand ist ein Fernseher angebracht. Es gibt auch ein paar Bänke und Beistelltische im Ess-/Wohnbereich, die zum Abstellen von Getränken, Essen oder Gegenständen genutzt werden können.

Hergestellt von
Marsh & Co
678 sq ft
63 m2
1 Etage

Dieser Grundriss kann angepasst werden.

Dieses Projekt bearbeiten

Möchten Sie diesen Grundriss bearbeiten oder einen eigenen erstellen?

Download App

Ähnliche Grundrisse


Mehr von diesem Anbieter