Grundriss für ein Tiny House mit 2 Schlafzimmern und Veranda

431 sq ft
40 m²
1 Etage
2 Schlafzimmer
2 Badezimmer

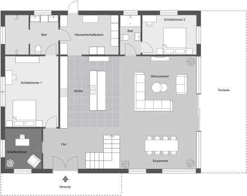
In diesem Grundriss für ein Tiny House mit 2 Schlafzimmern sorgt eine geräumige Eingangsveranda dafür, dass Innen- und Außenleben nahtlos ineinander übergehen. Durch die Schiebetür gelangen Sie direkt in den offenen Wohn- und Küchenbereich. Die L-förmige Küche ist mit einem Kühlschrank, einer Spüle, einem Herd und praktischen Hängenschränken ausgestattet. Obwohl der Plan einen Außenessbereich vorsieht, können Sie alternativ den Sitzbereich entfernen und stattdessen einen Esstisch in der Küche positionieren. Die beiden Schlafzimmer sind für Doppel- oder Queensize-Betten vorgesehen, wobei eines von ihnen auch mit Etagenbetten oder einem Arbeitsbereich gestaltet werden kann. Beide Badezimmer bieten eine Dusche, ein Waschbecken und eine Toilette. Zusätzlich bietet das größere Bad Platz für eine Waschmaschine und einen Trockner, was für zusätzlichen Komfort sorgt.


Hergestellt von
Home Designs

Ähnliche Grundrisse


Mehr von diesem Anbieter