Grundriss für ein 3-stöckiges Zweifamilienhaus

1686 sq ft
157 m²
3 Etagen
3 Schlafzimmer
2 Badezimmer

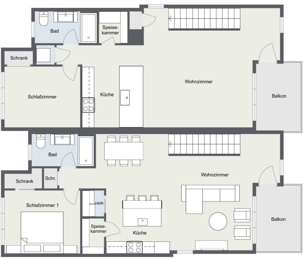
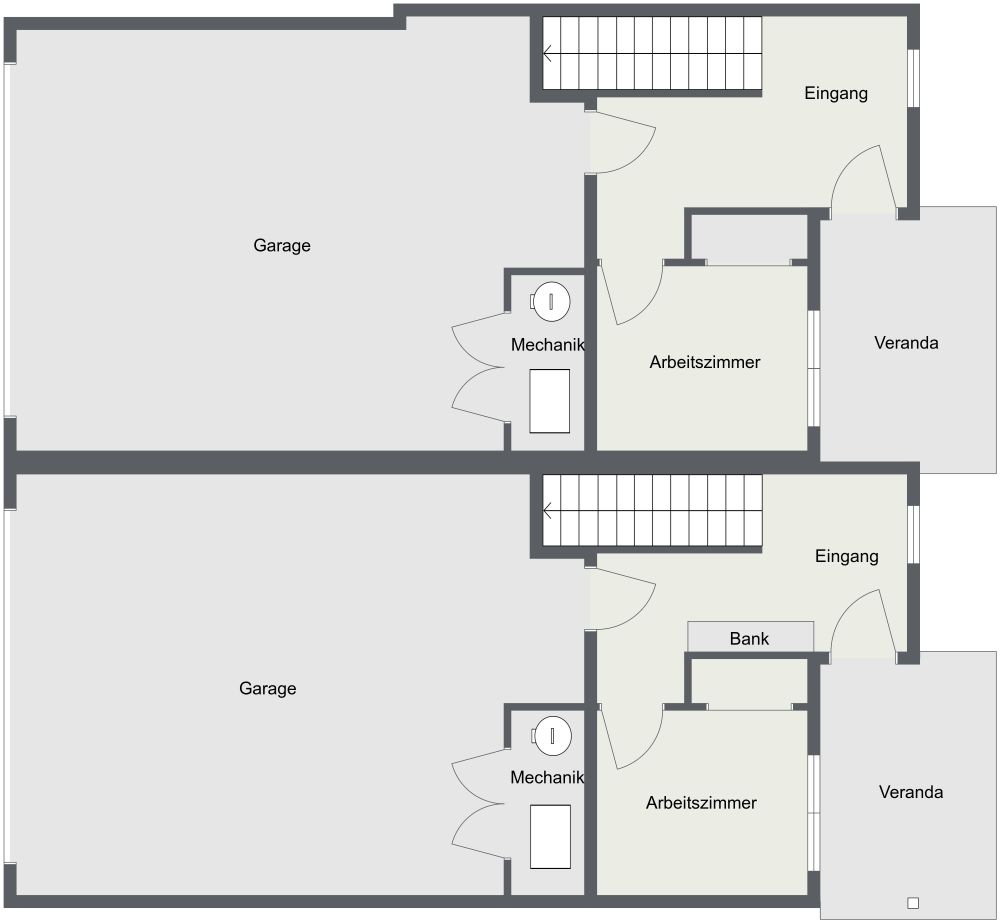
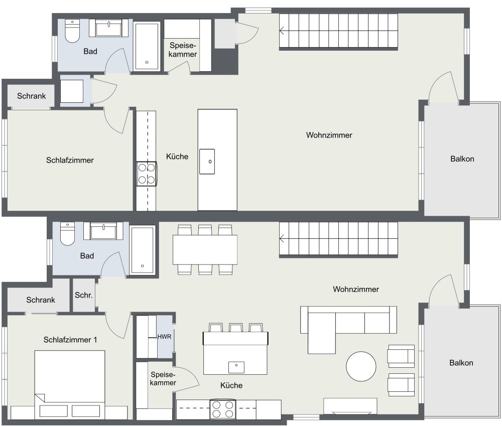
Dieser Grundriss für ein 3-stöckiges Zweifamilienhaus zeigt verschiedene Layouts für die gleiche Grundfläche: Eine Einheit bietet ein Wohnzimmer mit hohen Decken und 2 Schlafzimmern, während die andere Einheit ein drittes Schlafzimmer über dem Wohnzimmer bietet. Das Erdgeschoss beider Doppelhaushälften ist exakt gleich gestaltet: Veranda, Eingangsbereich, Büro, Technikraum und Garage. Die mittlere Etage einer Einheit verfügt über eine Garderobe am oberen Ende der Treppe, eine geteilte Küche mit einer Speisekammer auf der anderen Seite des Flurs und einer geräumigen Kücheninsel. Das Wohnzimmer in diesem Grundriss hat hohe Decken, die bis zum Dach reichen. Auf der gleichen Ebene der anderen Haushälfte befindet sich am oberen Ende der Treppe eine Essecke, und die Garderobe und die Speisekammer sind näher an die Küche gerückt. Das Wohnzimmer hat eine normale Deckenhöhe. Im Obergeschoss bietet eine der Einheiten einen offenen Treppenabsatz mit Blick auf das darunter liegende Wohnzimmer und ein Hauptschlafzimmer mit einer privaten Terrasse, einem geräumigen begehbaren Kleiderschrank und einem eigenen Bad. Die andere Einheit bietet ein zusätzliches zweites Schlafzimmer oder ein optionales Büro auf dieser Etage.


Hergestellt von
Kim Anderson Art & Design

Ähnliche Grundrisse


Mehr von diesem Anbieter