Harmoni 132 Grundrisse

1497 sq ft
139 m²
1 Etage
3 Schlafzimmer
2 Badezimmer

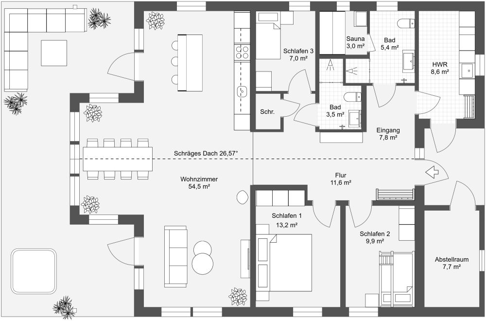
Erleben Sie die schöne Aussicht und das Leben im Innen- und Außenbereich mit dem funktionalen Harmoni 132 Grundrisse. Die vordere Veranda mit ihrer schönen Eingangstür und dem Fenster bietet auch Zugang zu einem großen Abstellraum, perfekt für Fahrräder, Werkzeuge oder alles, was Sie außerhalb des Hauptwohnbereichs aufbewahren möchten. Beachten Sie auch die praktische Eingangstür zur Waschküche. Perfekt für jeden, der das Haus mit schlammigen oder nassen Schuhen und Kleidern betreten möchte. Am Ende des Flurs befindet sich ein geräumiges großes Zimmer mit einem Kamin, großen Fenstern und Glastüren, die auf eine schöne Terrasse führen. Der Esstisch mit Fenstern auf drei Seiten bietet eine schöne Aussicht. Die große, einwandige Küche verfügt über eine Insel für zusätzlichen Stauraum, Vorbereitungsmöglichkeiten und eine Sitzgelegenheit an der Frühstücksbar. Abgerundet wird dieses Layout durch das große primäre Schlafzimmer und die zwei kleineren sekundären Schlafzimmer. Ein Badezimmer verfügt über ein Waschbecken, eine Toilette und eine Dusche, während das andere Badezimmer sogar mit einer Sauna oder einem Dampfbad ausgestattet ist.


Hergestellt von
Bra Hus

Ähnliche Grundrisse


Mehr von diesem Anbieter