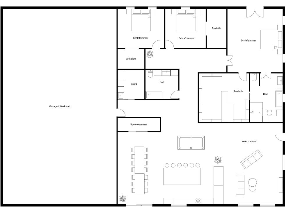
Hausplan mit 3 Schlafzimmern, Garage und Werkstatt

Lassen Sie sich von diesem geräumigen Hausplan mit 3 Schlafzimmern, Garage und Werkstatt inspirieren. Durch die Eingangstür gelangen Sie in ein offenes Raumkonzept mit einem großen Wohnzimmer und ausreichend Platz für einen Pool- oder Tischtennistisch. Die L-förmige Küche mit großer Kochinsel/Frühstücksbar und einem Esstisch, der Platz für viele Personen bietet, bietet viel Raum zum Kochen und Unterhalten. Köche/Köchinnen werden auch die große begehbare Speisekammer zu schätzen wissen. Genießen Sie die Einrichtungsmöglichkeiten in der großen Hauptsuite, die über einen riesigen begehbaren Kleiderschrank und ein geräumiges Badezimmer mit Waschbecken, Toilette, Badewanne und separater Dusche verfügt. Zwei weitere Schlafzimmer verfügen ebenfalls über große begehbare Kleiderschränke und teilen sich ein nahegelegenes und anpassbares Badezimmer. Ein praktischer Hauswirtschaftsraum und ein übergroßer Garagenplatz vervollständigen diesen Grundriss; richten Sie die Garage mit Werkzeugen, Stauraum oder einem Fitnessstudio ein; Sie haben immer noch Platz für mehrere Autos.

Hergestellt von
Barndos
3147 sq ft
292 m2
1 Etage
3 Schlafzimmer
2 Badezimmer

Dieser Grundriss kann angepasst werden.

Dieses Projekt bearbeiten

Möchten Sie diesen Grundriss bearbeiten oder einen eigenen erstellen?

Download App

Ähnliche Grundrisse


Mehr von diesem Anbieter