Grundriss für ein warmes und elegantes Studio-Apartment mit Balkon

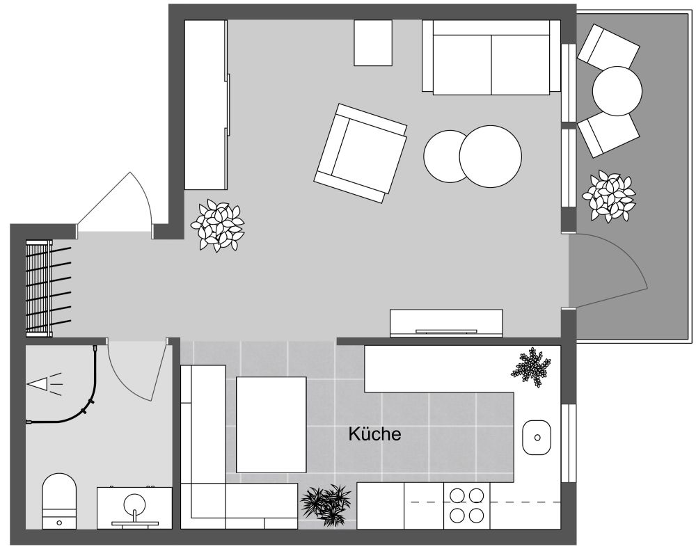
Dieser Grundriss für ein warmes und elegantes Studio-Apartment mit Balkon bietet eine Menge Inspiration. Der vordere Eingangsbereich verfügt über eine bequeme offene Ablagefläche mit einem Schrank und einer Schuhablage. Wenn Sie den Raum lieber abschließen möchten, fügen Sie einen Vorhang oder Schranktüren hinzu. Vom Eingangsbereich aus gelangen Sie in ein gemütliches Wohnzimmer mit herrlichem Blick auf die private Außenterrasse. Eine Sofagruppe dient nachts auch als Schlafplatz. In der Nähe wärmt ein elektrischer Kamin den Raum, und ein Kleiderschrank bietet Stauraum für alles, was Sie brauchen. Köche werden die separate U-förmige Küche mit ihrem großen Kühlschrank, dem Herd, der Doppelspüle, den oberen Schränken und der großen Arbeitsfläche zu schätzen wissen. Nutzen Sie den angrenzenden Esstisch für Mahlzeiten, oder auch für Arbeit oder Vorbereitungen. Das Badezimmer verfügt über ein Waschbecken, eine Toilette und eine begehbare Dusche.

Hergestellt von
Apartment Designs
417 sq ft
39 m2
1 Etage
1 Badezimmer

Dieser Grundriss kann angepasst werden.

Dieses Projekt bearbeiten

Möchten Sie diesen Grundriss bearbeiten oder einen eigenen erstellen?

Download App

Ähnliche Grundrisse


Mehr von diesem Anbieter