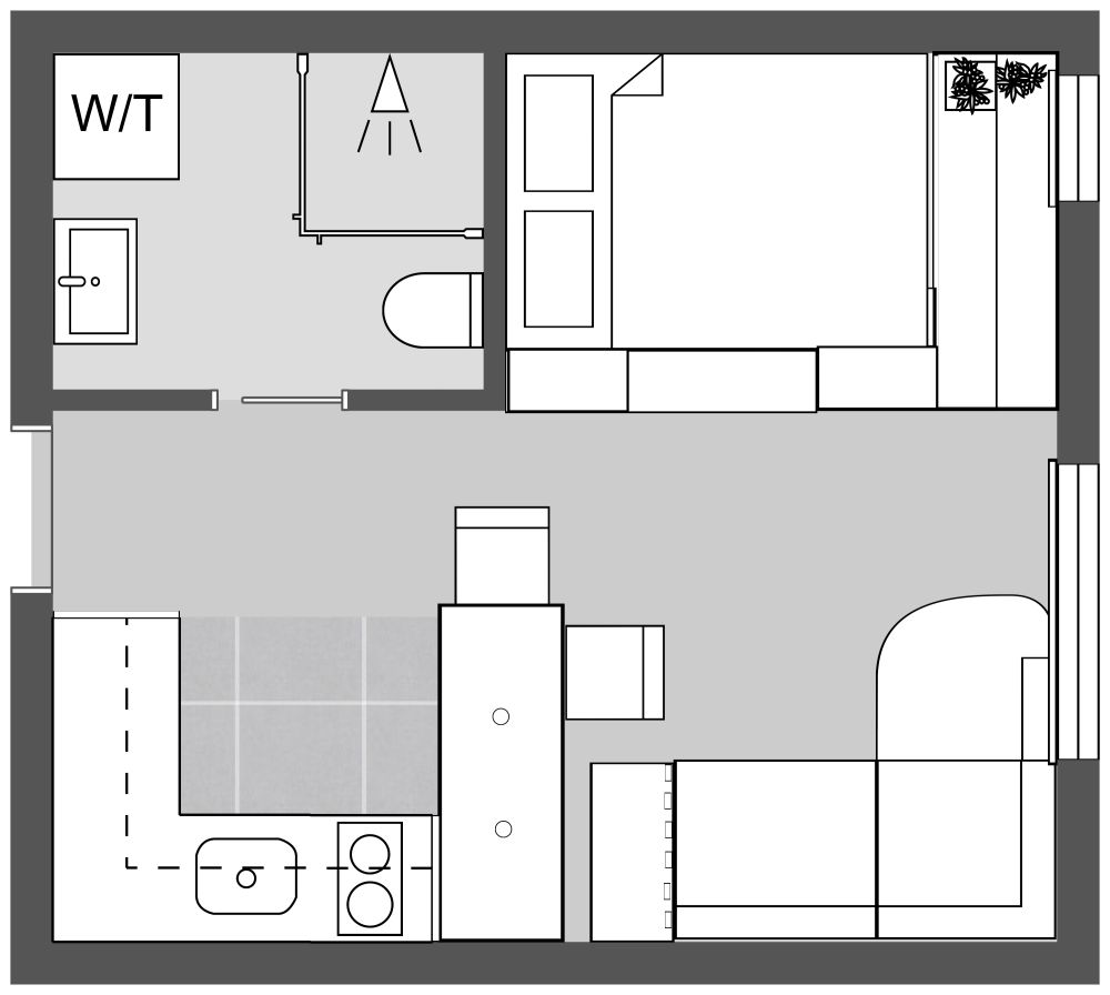
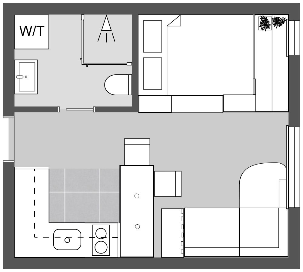
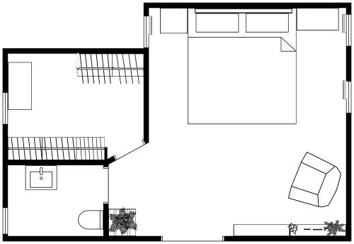
1-Zimmer-Wohnung mit cleverem Stauraum

214 sq ft
20 m²
1 Etage
1 Badezimmer

In diesem 1-Zimmer-Wohnung mit cleveren Stauraum findet alles einen Platz. Die Eingangstür führt in ein offenes Konzept von Küche, Ess- und Wohnbereich. Die L-förmige Küche verfügt über einen kompakten Herd, eine Spüle, einen Unterbaukühlschrank und praktische Oberschränke. In der Nähe befindet sich ein gut gestalteter Esstisch, der Platz für 4 Personen bietet und auch als Schreibtisch oder Arbeitsbereich genutzt werden kann. Ein modulares Ecksofa ermöglicht verschiedene Möbelanordnungen im Wohnzimmer, während Sie und Ihre Gäste sich unterhalten oder fernsehen. Eingebaute Regale und große untere Schubladen, die bis unter das Bett reichen, sorgen für maximalen Stauraum. Ein Doppelbett ist über zwei Treppen auf der anderen Seite dieser Stauraumwand zu erreichen. Eine Schiebetür führt zu einem Badezimmer mit Waschbecken, Toilette, begehbarer Dusche und einem praktischen Wasch-/Trockenschrank.


Hergestellt von
Hvjezd | TLOCRTI

Ähnliche Grundrisse


Mehr von diesem Anbieter