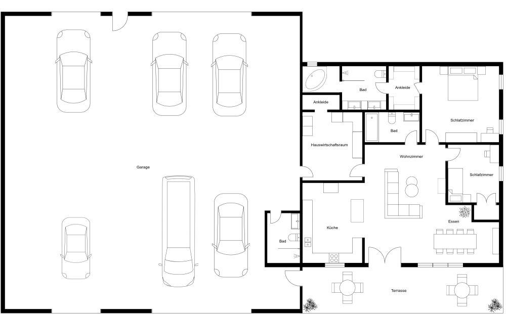
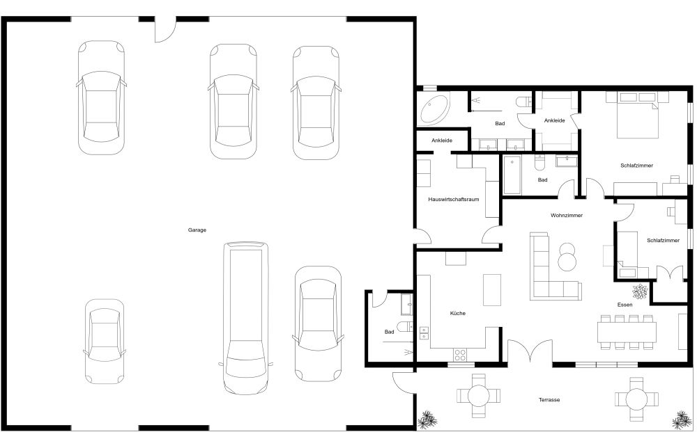
Grundriss für ein Haus mit 2 Schlafzimmern und Garage für 6 Autos

1631 sq ft
152 m²
1 Etage
2 Schlafzimmer
3 Badezimmer

Dieser Grundriss für ein Haus mit 2 Schlafzimmern und einer Garage für 6 Autos ist mit seinem riesigen Garagenplatz von 18 m x 18 m perfekt für Autoliebhaber. Inklusive der Garage beträgt die Gesamtfläche des Grundrisses 470 m². Betreten Sie das Haus durch die charmante vordere Veranda, die direkt in den offenen Wohn- und Essbereich führt. Hier sticht besonders die geräumige U-förmige Küche hervor, in der all Ihre Küchengeräte Platz finden werden. Praktisch gelegen, sind sowohl ein separater Abstellraum als auch ein Hauswirtschaftsraum, die sowohl von der Garage als auch vom Wohnbereich aus zugänglich sind. Das Hauptschlafzimmer, ein Ort der Ruhe, besticht durch einen großzügigen begehbaren Kleiderschrank und ein en suite Badezimmer, ausgestattet mit zwei Waschbecken, einer separaten Dusche und einer Badewanne. Das zweite Schlafzimmer bietet ebenfalls viel Raum und verfügt über einen weiteren begehbaren Kleiderschrank. Das absolute Highlight dieses Grundrisses ist die riesige Garage. Mit ihren vier Fahrzeugtüren bietet sie nicht nur viel Platz für Ihre Fahrzeuge, sondern verfügt zudem über ein kleines Badezimmer mit Waschbecken, Toilette und Dusche. Und das Beste: Der zusätzliche Raum in der Garage kann ideal als Werkstatt oder Fitnessraum genutzt werden.


Hergestellt von
Barndos

Ähnliche Grundrisse


Mehr von diesem Anbieter