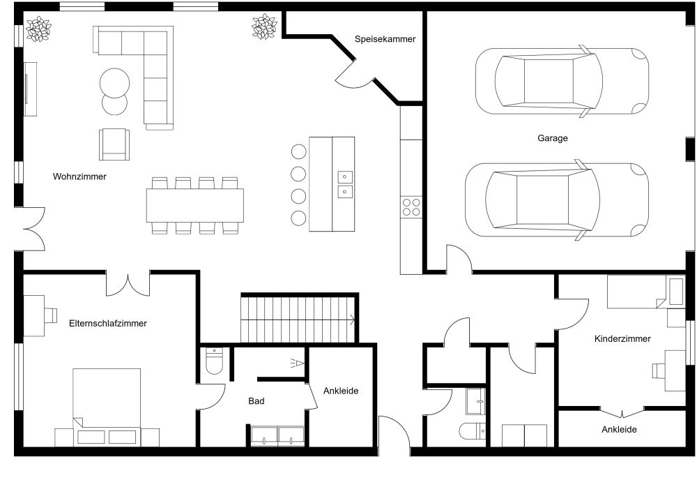
Grundriss für ein 2-stöckiges Haus mit 4 Schlafzimmern und Doppelgarage

2457 sq ft
228 m²
2 Etagen
4 Schlafzimmer
2 Badezimmer
1 Toilette

Dieser einladende Grundriss für ein 2-stöckiges Haus mit 4 Schlafzimmern und Doppelgarage bietet auf jeder Etage zwei Schlafzimmer und eignet sich ideal für Familien, die eine Trennung zwischen Eltern- und Kinderbereich bevorzugen. Der Eingangsbereich beeindruckt mit einer Doppeltür und führt in einen großzügigen, offenen Wohn- und Essbereich. Die zentrale Kücheninsel bietet reichlich Platz zum Kochen und für gesellige Stunden, ergänzt durch eine geräumige, begehbare Speisekammer. Die Doppelgarage verfügt über einen praktischen direkten Hauszugang, einen Garderobenschrank, ein Badezimmer und einen separaten Hauswirtschaftsraum. Im Erdgeschoss befindet sich das Hauptschlafzimmer mit einem eigenen Bad, das mit Doppelwaschbecken, Dusche, Toilette und einem begehbaren Kleiderschrank ausgestattet ist. Das zweite Zimmer auf dieser Ebene lässt sich flexibel als Gästezimmer oder Büro gestalten. Das Obergeschoss beherbergt zwei weitere Schlafzimmer mit Einbauschränken, ein voll ausgestattetes Bad und einen offenen, vielseitig nutzbaren Raum – ideal als Arbeitszimmer, Jugendtreff oder Spielzimmer.


Hergestellt von
Barndos

Ähnliche Grundrisse


Mehr von diesem Anbieter