Grundriss für ein großes Haus mit 1 Schlafzimmer und Doppelgarage

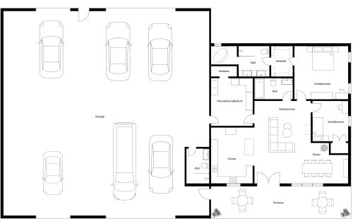
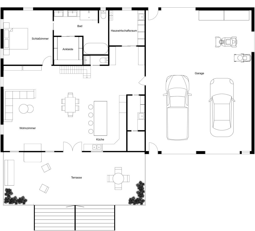
Dieser Grundriss für ein großes Haus mit 1 Schlafzimmer und Doppelgarage bietet viele herausragende Merkmale. Die Vorderseite des Gebäudes präsentiert eine großzügige Terrasse, die sich perfekt für Aktivitäten im Freien eignet. Elegante Flügeltüren öffnen sich zu einem weitläufigen Raum, der einen behaglichen Wohnbereich, einen Essplatz, eine Kücheninsel und eine L-förmige Küche harmonisch vereint. Die Küche ist mit einer großen Spüle, einem Geschirrspüler und einem Kühlschrank ausgestattet. Angrenzend an den Hauptwohnbereich befindet sich ein funktionales Badezimmer. Das großzügige Schlafzimmer, welches ausreichend Platz für ein Queensize- oder Kingsize-Bett, Beistelltische und eine Kommode bietet, wird durch einen begehbaren Kleiderschrank ergänzt, der zusätzlichen Stauraum schafft. Das en-suite Badezimmer verströmt Wellness-Flair und ist mit einem Doppelwaschbecken, einer separaten Dusche, einer Badewanne und einer Toilette versehen. Die geräumige Doppelgarage bietet nicht nur Stellplätze für zwei Autos, sondern auch genügend Raum für Gartengeräte, ein ATV, ein Motorrad oder eine Werkstatt. Ein zweiter Eingang führt von der Garage in einen Abstellraum oder einen umfangreichen Hauswirtschaftsraum mit Waschbecken, Waschmaschine/Trockner und Ablageflächen.

Hergestellt von
Barndos
1592 sq ft
148 m2
1 Etage
1 Schlafzimmer
1 Badezimmer
1 Toilette

Dieser Grundriss kann angepasst werden.

Dieses Projekt bearbeiten

Möchten Sie diesen Grundriss bearbeiten oder einen eigenen erstellen?

Download App

Ähnliche Grundrisse


Mehr von diesem Anbieter