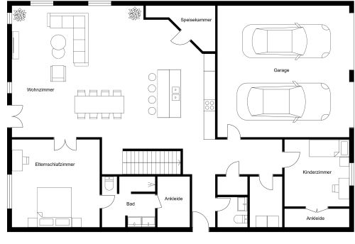
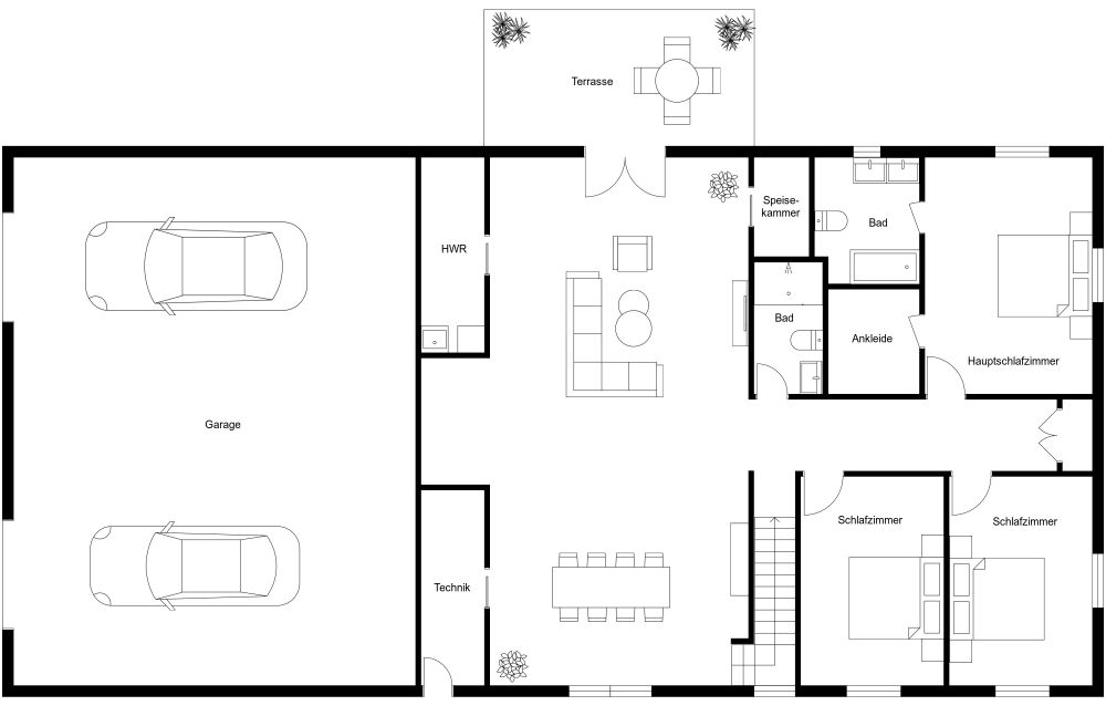
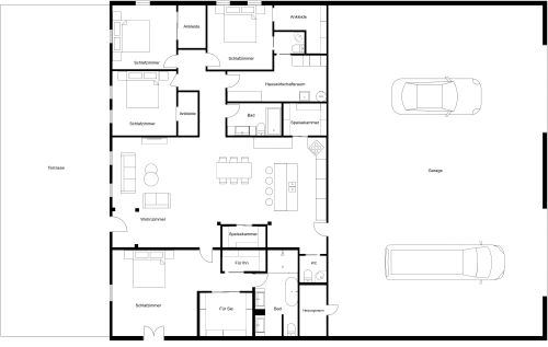
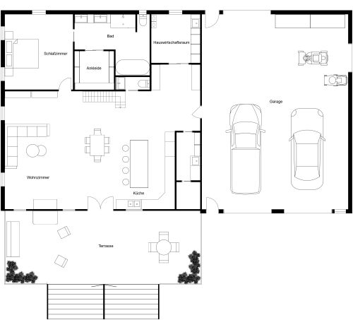
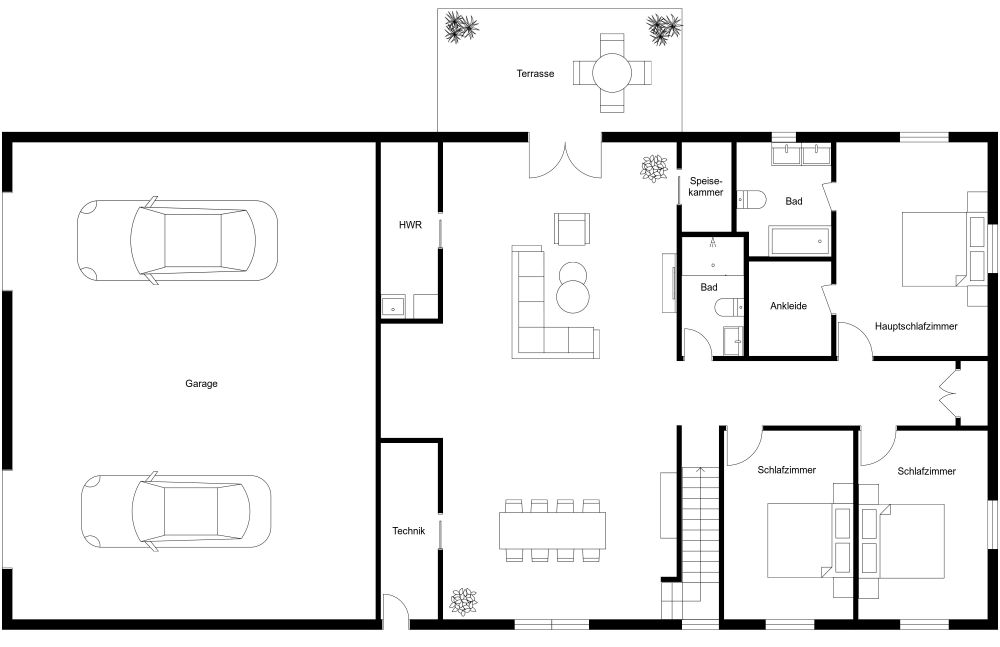
Hausplan mit 3 Schlafzimmern und Doppelgarage

Mit einem maskulinen Ambiente und modernem Komfort beweist dieser Hausplan mit 3 Schlafzimmern und Doppelgarage, dass auch ein schlichtes Design stark überzeugen kann. Satte Nussbaumböden und hellgraue Wände bilden den Hintergrund für alle Wohnräume, mit Ausnahme der beiden Bäder und der Waschküche, die mit dunkelgrauen Fliesenböden und strahlend weißen Elementen ausgestattet sind. Der geräumige Wohnbereich ist groß genug, um bequem eine Wohnzimmer-Sitzgruppe und eine Essgarnitur unterzubringen. Ein dunkelbraunes Wandelement bricht die Schlichtheit der Wände auf und hebt den Fernseher hervor. Die drei Schlafzimmer des Hauses bieten alle ausreichend Platz für ein Doppelbett und zwei Beistelltische. Die großzügige Garage bietet Platz für zwei Autos und zusätzlichen Stauraum für Werkzeug, Spielzeug oder andere Dinge, die im Haushalt benötigt werden. Sie werden es lieben, Gäste zu bewirten oder Ihre Familie auf der kleinen Außenterrasse zu besuchen.

Hergestellt von
Barndos
1869 sq ft
174 m2
1 Etage
3 Schlafzimmer
2 Badezimmer

Dieser Grundriss kann angepasst werden.

Dieses Projekt bearbeiten

Möchten Sie diesen Grundriss bearbeiten oder einen eigenen erstellen?

Download App

Ähnliche Grundrisse


Mehr von diesem Anbieter