Grundriss für ein 3-stöckiges großes Haus mit 8 Schlafzimmern

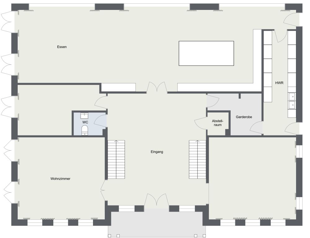
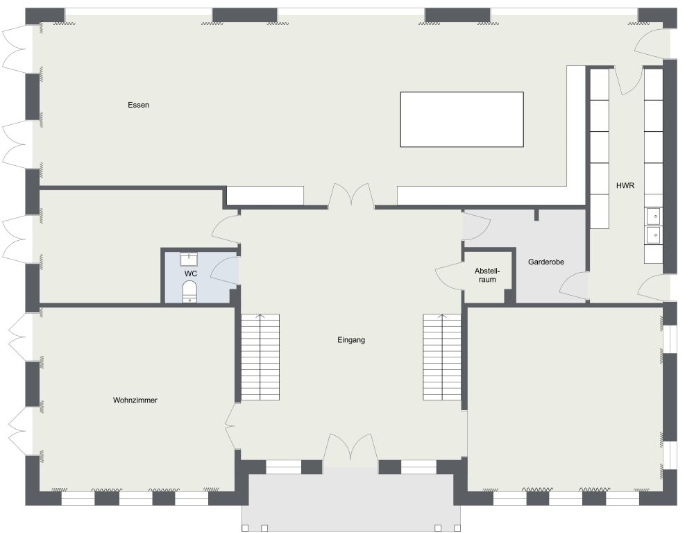
Wenn Sie eine große Familie haben oder oft Freunde zu Gast haben, dann werden Sie diesen Grundriss für ein 3-stöckiges großes Haus mit 8 Schlafzimmern lieben. Im ersten Stock gibt es einen Flur am Eingang, ein Wohnzimmer auf der linken Seite, ein zusätzliches Zimmer auf der rechten Seite, ein WC mit Toilette und Waschbecken und einen langen Essbereich mit Sideboards und einer Insel. Außerdem gibt es einen Technikraum, eine Garderobe und einen Hauswirtschaftsraum mit zwei langen Theken und zwei Waschbecken. Im zweiten Stock befinden sich zwei große Gästezimmer und zwei kleinere Schlafzimmer sowie zwei Bäder mit Duschen und Toiletten. Im dritten Stock gibt es zwei mittelgroße Schlafzimmer und zwei kleinere Schlafzimmer. Außerdem gibt es drei Bäder mit Wanne, Dusche, Toilette und Waschbecken. Es gibt eine quadratische Galerie, in der man Kunstwerke aufhängen kann, und einen Balkon, der sich über die gesamte Länge des Hauses erstreckt.

Hergestellt von
Marsh & Co
8438 sq ft
784 m2
3 Etagen
8 Schlafzimmer
5 Badezimmer
1 Toilette

Dieser Grundriss kann angepasst werden.

Dieses Projekt bearbeiten

Möchten Sie diesen Grundriss bearbeiten oder einen eigenen erstellen?

Download App

Ähnliche Grundrisse


Mehr von diesem Anbieter