Grundriss für ein mittelgroßes, rechteckiges Badezimmer

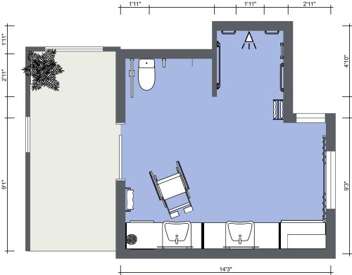
Dieser Grundriss für ein mittelgroßes, rechteckiges Badezimmer wirkt dezent und gleichzeitig elegant. Das Bad ist in verschiedenen Weiß- und Grautönen gehalten. Die Fliesen auf dem Boden sind in einem dunklen Grau mit einem Natursteinmuster, während die Fliesen an den Wänden in einem helleren Grau mit horizontalen Streifen gestaltet sind. Es gibt eine ovale, skulpturale Badewanne in Weiß mit einer hölzernen Wannenablage, auf der Sie eine Tasse Kaffee oder ein Buch abstellen können. In einer Ecke befindet sich auch eine Dusche, für die Tage, an denen man keine Zeit für ein langes Bad hat. In einer Ecke befindet sich eine Toilette und in einer anderen ein rundes Waschbecken. Das Holzdekor der Badewannenablage passt zum Holzdekor des Waschbeckens und verleiht dem Bad eine natürliche, elegante Ausstrahlung.

Hergestellt von
Andrea Platzer
89 sq ft
8 m2
1 Etage

Dieser Grundriss kann angepasst werden.

Dieses Projekt bearbeiten

Möchten Sie diesen Grundriss bearbeiten oder einen eigenen erstellen?

Download App

Ähnliche Grundrisse


Mehr von diesem Anbieter