Badezimmer mit Waschmaschine und Trockner

47 sq ft
4 m²

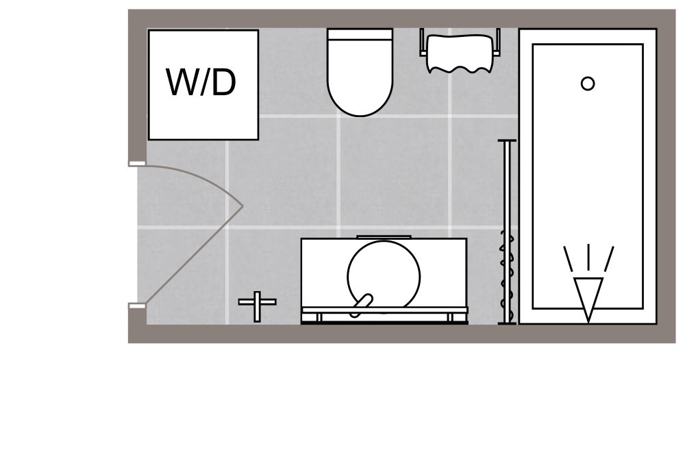
Dieses rechteckige Bad mit Waschmaschine und Trockner bietet sowohl Funktionalität als auch Komfort. Die Schwingtür öffnet sich und gibt den Blick auf das schwebende Waschbecken frei, das mit großzügigen Oberflächen und Stauraum unter dem Waschbecken ausgestattet ist. Mit einem an der Wand montierten Waschtisch und einer schwebenden Toilette wirkt dieser Raum geräumig und ist leicht zu reinigen. Eine Badewanne mit Duschvorrichtung bietet Flexibilität bei der Wahl des Bades, und neben der Wanne hält ein praktischer Handtuchhalter trockene Handtücher griffbereit. Entscheiden Sie sich für eine Waschmaschinen/Trockner-Kombination für die entsprechende Ecke. Das neutrale Dekor zeichnet sich durch eine Wand aus honigfarbenem Riegelstein aus, die für Struktur und visuelles Interesse sorgt, während großformatige Stapelfliesen die drei anderen Wände bedecken. Ein hellblauer Duschvorhang und meerglasfarbene Handtücher verleihen diesem beruhigenden, natürlichen Design einen Hauch von Farbe.


Hergestellt von
Bathroom Designs

Ähnliche Grundrisse


Mehr von diesem Anbieter