Rustikales Badezimmer mit Waschmaschine und Trockner

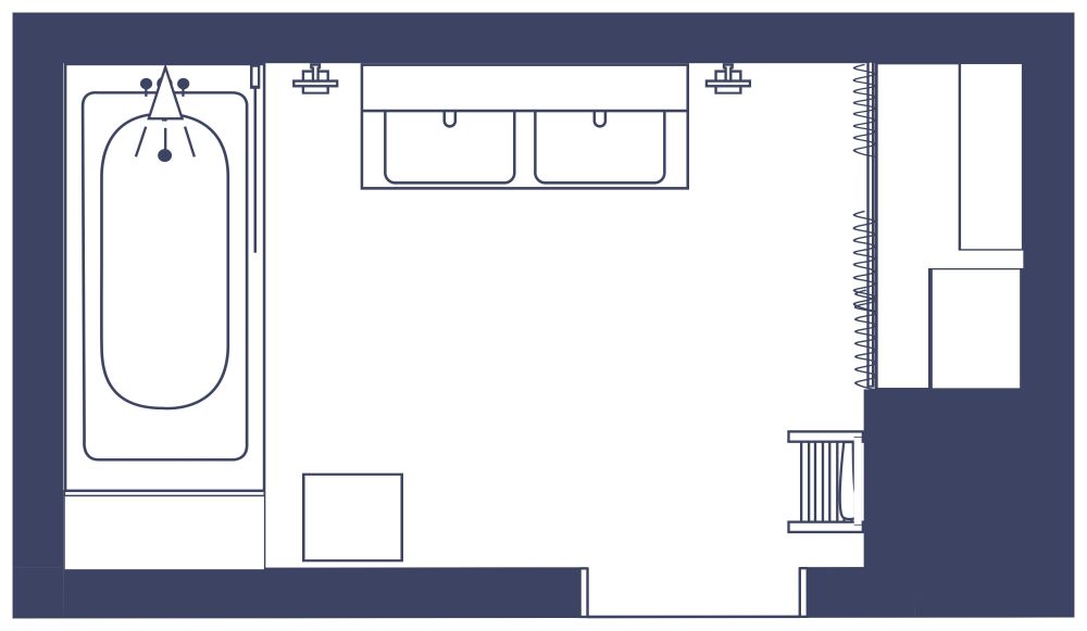
Wenn Sie ein Fan des rustikalen Stils sind, sollten Sie sich dieses rechteckige Badezimmer mit Waschmaschine und Trockner ansehen. Der Grundriss bietet eine Flügeltür, die in einen rechteckigen Raum führt, mit einem großen Schrank für die Waschmaschine/den Trockner an einem Ende – ein Vorhang verbirgt den Bereich, wenn die Waschmaschine/der Trockner nicht in Gebrauch ist. Das Badezimmer ist mit einem Doppelwaschbecken und einer kombinierten Badewanne und Dusche ausgestattet – Sie können den Grundriss anpassen, um eine kleine separate Dusche und Toilette einzubauen, wenn Sie dies wünschen. Zu den Schlüsselelementen eines Badezimmers im rustikalen Stil gehören natürliche Materialien und Behandlungen, wie sie im Waschtisch, den Regalen, dem Hocker und dem Handtuchhalter aus Holz zu finden sind. Ein Naturfaserteppich verleiht der Einrichtung Struktur, und die grünen Handtücher bringen einen zusätzlichen Hauch von Natur ins Spiel. Neutrale graue Bodenfliesen, weiße Wandfliesen und Chrom-Armaturen vervollständigen dieses rustikale Design.

Hergestellt von
Bathroom Designs
77 sq ft
7 m2
1 Etage

Dieser Grundriss kann angepasst werden.

Dieses Projekt bearbeiten

Möchten Sie diesen Grundriss bearbeiten oder einen eigenen erstellen?

Download App

Ähnliche Grundrisse


Mehr von diesem Anbieter