Grundriss für eine Küche mit gemütlicher Essecke und Kamin

205 sq ft
19 m²

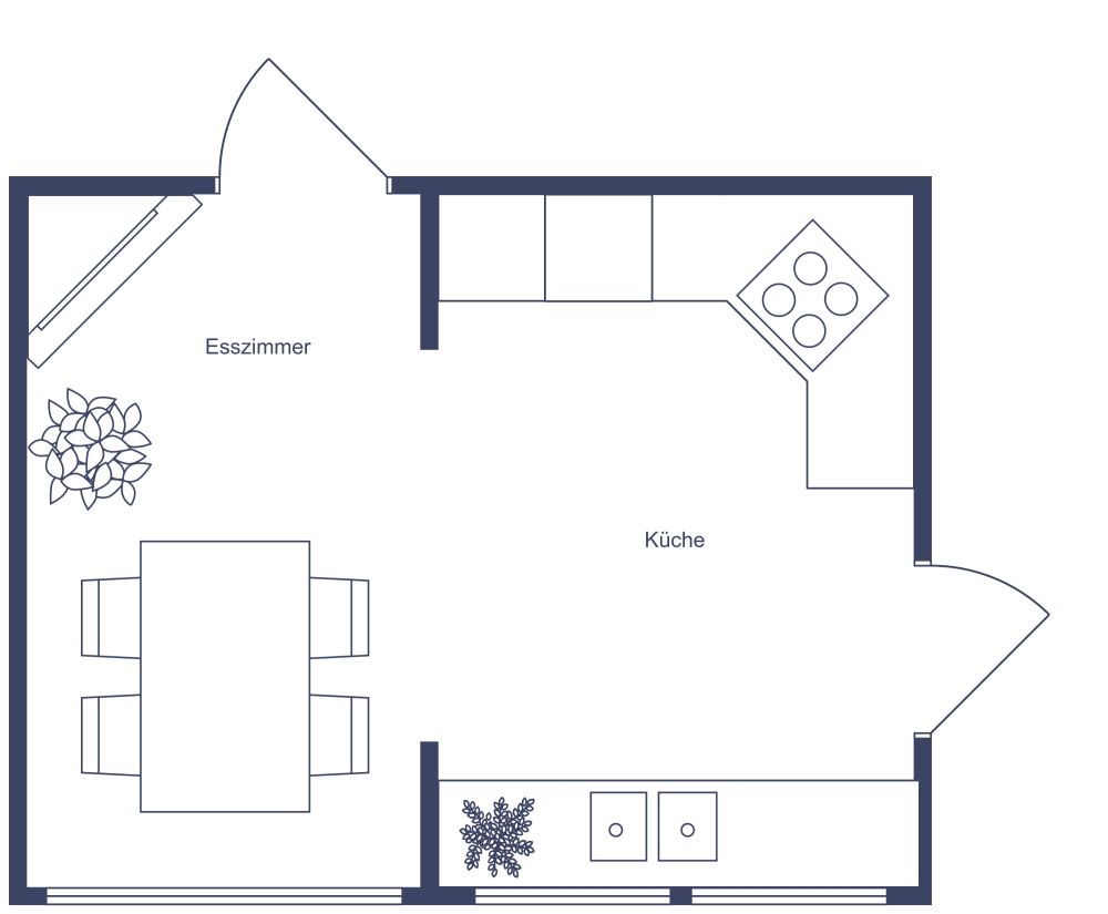
Dieser schöne Grundriss für eine Küche mit gemütlicher Essecke und Kamin wird sicherlich das Herzstück Ihres Hauses werden. Der Küchenbereich und Essbereich sind teilweise durch zwei kleine Trennwände aufgeteilt und gehen dennoch nahtlos ineinander über. Der Küchenbereich ist mit einem warmen Fliesenboden, hellen Schränken und grau marmorierten Arbeitsflächen ausgestattet. Über der Spüle befinden sich zwei kleine Fenster, die den Raum öffnen und das dringend benötigte natürliche Licht hereinlassen. Der Essbereich zeichnet sich durch stilvolle Hartholzböden, auffällige gestreifte Tapeten und eine Wand mit drei großen Fenstern aus, die dem Raum Helligkeit und Charme verleihen. Als ob diese schönen Details nicht schon reizvoll genug wären, befindet sich in der Ecke des Essbereichs ein moderner Kamin, der eine gemütliche und attraktive Atmosphäre schafft, die Feiern und gewöhnliche Abendessen zu etwas Besonderem und Intimen macht. Sie werden sich darauf freuen, Zeit in diesem einladenden Raum zu verbringen.


Hergestellt von
Kitchen Designs

Ähnliche Grundrisse


Mehr von diesem Anbieter