Barrierefreies Badezimmer mit Badewanne

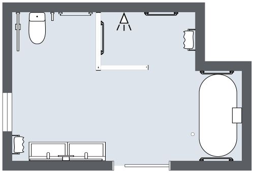
Dieser Grundriss zeigt ein hervorragendes Layout für ein barrierefreies Badezimmer mit Badewanne. Eine breite Schwingtür führt in einen separaten Bereich mit zwei barrierefreien Waschbecken. Der Wandspiegel ist auf einer niedrigeren Höhe angebracht, um sitzende und stehende Benutzer zu unterstützen. Sie können auf jeder Seite des Waschbeckens ein Nischenregal an der Wand anbringen, um Zahnbürsten und anderes Waschbeckenzubehör aufzubewahren. Eine zweite Flügeltür führt in den Toiletten- und Baderaum. Eine Toilette in Komforthöhe mit Haltegriffen ist mit zusätzlichem Platz auf beiden Seiten für den Transfer vom Rollstuhl ausgestattet. Ein Haltegriff neben dem Wanneneinstieg hilft Personen mit eingeschränkter Mobilität beim Einsteigen in die Wanne, und eine Handbrause bietet mehrere Bademöglichkeiten. Ein Tisch daneben bietet Platz für Handtücher, Shampoo, Seife und andere Badeprodukte. Die Einrichtung besteht aus grauen Bodenfliesen in einem Fischgrätenmuster und aquamarinfarbenen Wandfliesen. Die Messing-Armaturen heben sich ab und bilden einen schönen Kontrast. Zusammen mit den tealfarbenen Handtüchern und den grünen Pflanzen ergibt sich ein wunderschöner Raum.

Hergestellt von
Bathroom Designs
139 sq ft
13 m2
1 Etage

Dieser Grundriss kann angepasst werden.

Dieses Projekt bearbeiten

Möchten Sie diesen Grundriss bearbeiten oder einen eigenen erstellen?

Download App

Ähnliche Grundrisse


Mehr von diesem Anbieter