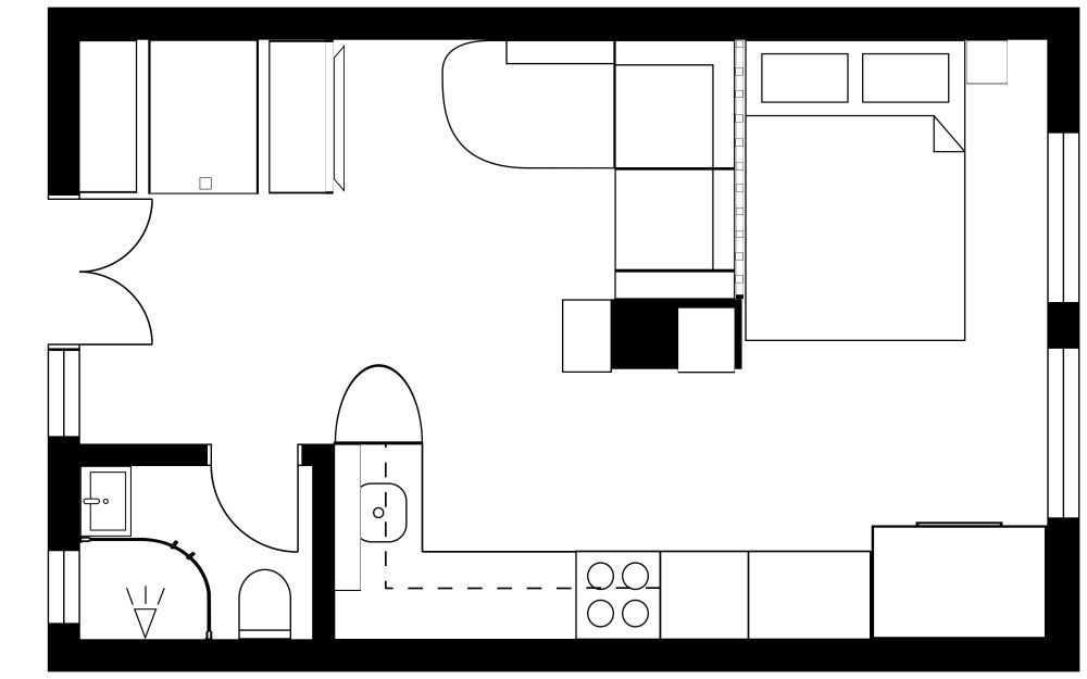
Moderne 1-Zimmer-Wohnung mit offenem Kamin

290 sq ft
27 m²
1 Etage
1 Badezimmer

An dieser modernen 1-Zimmer-Wohnung mit offenem Kamin gibt es viel zu lieben. Eine gläserne Doppeltür führt in einen Eingangsbereich mit einem angrenzenden eingebauten Essbereich oder Arbeitsbereich. In der Nähe befindet sich ein kompaktes Badezimmer mit Waschbecken, Toilette und begehbarer Dusche. Das offene Wohnzimmer verfügt über ein Ecksofa, einen Unterhaltungsbereich und einen zentralen Kamin, der den gesamten Raum erwärmt. Die einladende L-förmige Küche verfügt über eine Spüle, einen Herd, einen Geschirrspüler, praktische Oberschränke und Regale für Ihre Lieblingsgläser und -geschirr. Genießen Sie die Hocker an der abgerundeten Halbinsel – der perfekte Ort für einen Kaffee, ein schnelles Frühstück oder die Vorbereitung des Abendessens. Der Eingang zum Schlafzimmer verfügt über mehrere eingebaute Stauräume, Regale und eine Ablagebank für all Ihre Habseligkeiten. Außerdem bietet das Schlafzimmer Platz für ein Doppelbett oder ein Queensize-Bett.


Hergestellt von
Hvjezd | TLOCRTI

Ähnliche Grundrisse


Mehr von diesem Anbieter