Doppelgarage mit Apartment

607 sq ft
56 m²
2 Etagen
1 Schlafzimmer
1 Badezimmer

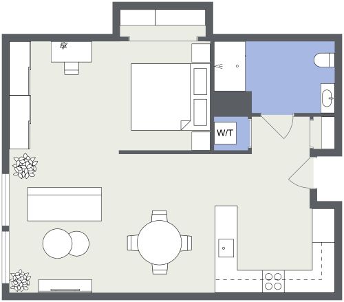
Sehen Sie sich diesen charmanten zweistöckigen Grundriss für eine Doppelgarage mit Wohnung darüber an. Das Erdgeschoss beherbergt die Doppelgarage, ausgestattet mit einer kosteneffizienten Einfahrtstür und einem zusätzlichen Abstellraum. Zusätzlich bietet eine sonnendurchflutete Waschküche mit einem praktischen, eingebauten Klappregal und zwei Fenstern viel Licht und Funktionalität. Eine Treppe führt zum Wohnbereich im Obergeschoss, welcher mit Garderobe und weiterem Stauraum in den Eingangsbereich mündet und in ein offenes Wohnkonzept übergeht. Die L-förmige Küche ist mit Herd, Spüle, einem Kühlschrank in voller Größe und Stauraum in den Hängenschränken komfortabel ausgestattet. Platzieren Sie den Esstisch in der Fensternische, um während des Essens die Aussicht zu genießen. Das ensuite Badezimmer, zugänglich vom Schlafzimmer aus, umfasst Waschtisch, Toilette und eine Dusch-Badewannen-Kombination; eine zusätzliche Tür könnte für Gäste den Zugang vom Flur aus ermöglichen. Das großzügige Schlafzimmer bietet ausreichend Raum für ein Doppel- oder Kingsize-Bett, eine Kommode, einen Schreibtisch, und punktet mit einem begehbaren Kleiderschrank sowie einem separaten Wäscheschrank.


Hergestellt von
Apartment Designs

Ähnliche Grundrisse


Mehr von diesem Anbieter