Grundriss für ein modernes, vollausgestattetes Bad

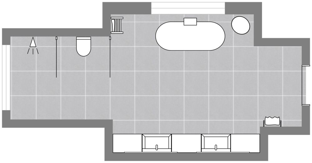
Dieser Grundriss für ein modernes, vollausgestattetes Bad zeigt modernes Design vom Feinsten. Der Grundriss weist eine Schwingtür auf, die in einen langen, rechteckigen Raum mit einer Ausbuchtung auf jeder Seite führt. Auf der linken Seite sind die beiden Waschbecken eine willkommene Option für zwei Personen, die sich ein Hauptbad teilen. Auf der rechten Seite befindet sich eine elegante, freistehende Badewanne, die ein Symbol für modernes Baddesign ist, und die neben einem großen Panoramafenster ihren perfekten Platz hat. Ein Stück weiter vervollständigen eine halbprivate Toilette und eine begehbare Dusche das Layout. Modernes Design ist elegant, schlank und minimalistisch. Dieses Badezimmer ist in neutralen Farben gehalten: Weiß und Hellgrau mit einem Hauch von Schwarz als Kontrast. Der schwebende Waschtisch und die Toilette sind ein Markenzeichen des modernen Stils und machen die Bodenreinigung zu einem Kinderspiel. Geometrische Formen sorgen für visuelles Interesse - beachten Sie das Fischgrätenmuster der Wandfliesen, die versetzten Bodenfliesen und die drei länglichen Pendelleuchten.

Hergestellt von
Andrea Platzer
206 sq ft
19 m2
1 Etage

Dieser Grundriss kann angepasst werden.

Dieses Projekt bearbeiten

Möchten Sie diesen Grundriss bearbeiten oder einen eigenen erstellen?

Download App

Ähnliche Grundrisse


Mehr von diesem Anbieter