Grundriss für ein Tiny House mit Terrasse

144 sq ft
13 m²
1 Etage
1 Badezimmer

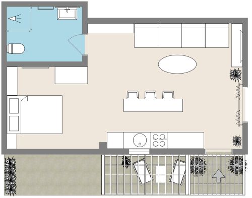
Dieser helle und lichtdurchflutete Grundriss für ein Tiny House mit Terrasse eignet sich gut für einen einzelnen Bewohner oder einen Gast. Die vordere Terrasse verfügt über entspannende Loungesessel; alternativ kann man mit einem zusätzlichen Bistrotisch Mahlzeiten im Freien genießen. Glasschiebetüren führen in einen offenen Raum mit einem Schlafsofa, das tagsüber zum Entspannen und nachts zum Schlafen genutzt werden kann. Richten Sie den Bereich neben dem großen Panoramafenster mit einem Lesesessel ein, wie auf dem Bild zu sehen, oder wie wäre es mit einem Bistrotisch für Mahlzeiten im Haus? Die kompakte Küche verfügt über einen kleinen Herd, einen Unterbaukühlschrank, eine an der Wand montierte Mikrowelle und Stauraum in den oberen Schränken. Eine Schiebetür führt zum Badezimmer, das mit einer Toilette, einem Waschtisch und einer begehbaren Dusche ausgestattet ist.


Hergestellt von
Franziska Voigt

Ähnliche Grundrisse


Mehr von diesem Anbieter