Bar-Grundrisse: So planen Sie das perfekte Bar-Layout
Ein durchdachter Bar-Grundriss hilft dabei, Räume effizient zu nutzen und klare Abläufe zu schaffen. Er bildet die Grundlage für ein angenehmes Gästeerlebnis und einen reibungslosen Betrieb hinter der Bar.

Ein Bar-Grundriss ist ein wichtiger Bestandteil der Planung, unabhängig davon, ob Sie eine kleine Nachbarschaftsbar oder eine größere Sportbar eröffnen möchten. Er zeigt, wie die einzelnen Bereiche Ihrer Bar angeordnet sind und wie sie zusammen funktionieren.
Bar-Grundrisse können in 2D erstellt werden, um die Raumaufteilung darzustellen, oder in 3D, um Materialien, Farben und die Atmosphäre zu visualisieren. Ziel ist es, einen Ort zu schaffen, an dem sich Gäste wohlfühlen und Mitarbeitende effizient arbeiten können.
💡Vorschriften und Genehmigungen
In vielen Städten ist ein Bar-Grundriss Teil des Genehmigungsverfahrens. Behörden verlangen häufig Pläne, die Fluchtwege, Sanitärbereiche und Barzonen klar ausweisen.
Sie können erste Bar-Grundrisse selbst entwerfen, um Ideen zu entwickeln. Für die finale Planung empfiehlt es sich jedoch, mit Fachleuten zusammenzuarbeiten, die mit den örtlichen Bau- und Hygienevorschriften vertraut sind.
Arten von Bars und typische Bar-Grundrisse
Die Art der Bar beeinflusst Größe und Aufbau des Grundrisses erheblich.
Nachbarschaftsbar
Gemütliche Bars für Stammgäste benötigen meist:
- einen klaren Barbereich
- einfache Sitzgelegenheiten
- wenig Platz für Speisen
Eine Fläche von etwa 100 bis 150 m² ist häufig ausreichend.
Spezialitäten-Bar
Zum Beispiel Wein-, Cocktail- oder Whiskeybars. Diese Bars sind oft kompakter, benötigen aber spezielle Lager- oder Kühlmöglichkeiten für ihr Angebot.

Brauereiausschank
Hier stehen Bier vom Fass, Lagerflächen und gegebenenfalls eine Küche im Mittelpunkt. Kühlung und Lagerung spielen im Bar-Grundriss eine größere Rolle.
Sportbar
Sportbars brauchen mehr Platz für:
- Bildschirme
- Aktivitäten wie Billard oder Darts
- ein erweitertes Speiseangebot
Oft liegt die Fläche bei etwa 200 m² oder mehr.

Bar mit Nachtclub-Charakter
Bars mit Bühne oder Tanzfläche benötigen großzügige Unterhaltungsbereiche. Nachtclubs erreichen häufig eine Größe von 250 bis 500 m².
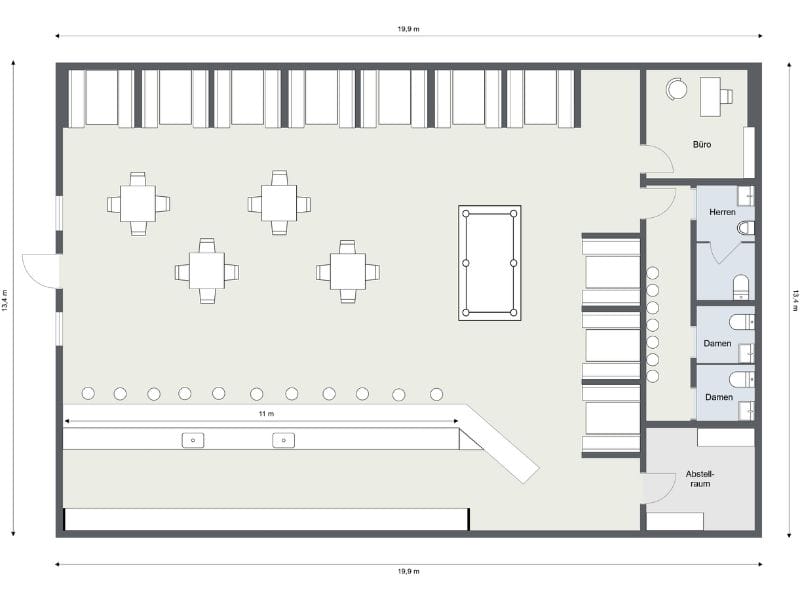
Wichtige Bereiche in Bar-Grundrissen
Unabhängig vom Konzept enthalten die meisten Bar-Grundrisse ähnliche Zonen.
Front of House (Gästebereiche)
Eingang
Der Eingang vermittelt den ersten Eindruck und sollte gut sichtbar und leicht zugänglich sein.
Barbereich
Der Barbereich ist das Herzstück der Bar. Ein gutes Layout reduziert Laufwege und unterstützt einen schnellen Service.

Sitzgelegenheiten
Je nach Konzept kommen Barhocker, Tische oder Sitznischen zum Einsatz. Eine Mischung bietet Gästen mehr Flexibilität.
Außenbereiche
Wenn möglich, sollten Sitzgelegenheiten im Freien im Bar-Grundriss berücksichtigt werden.

Toiletten
Sanitärräume sollten gut erreichbar, aber nicht im Mittelpunkt liegen.
Unterhaltungsbereiche
Je nach Konzept können dies Spielbereiche, eine Bühne oder eine Tanzfläche sein.
Ausgänge
Mehrere gut gekennzeichnete Ausgänge sind Pflicht und müssen im Bar-Grundriss klar dargestellt sein.
Back of House (Servicebereiche)
Die Back-of-House-Bereiche sind für Gäste nicht sichtbar, spielen aber eine zentrale Rolle für den täglichen Betrieb. Ein gut geplanter Bar-Grundriss sorgt dafür, dass diese Zonen funktional angeordnet und leicht erreichbar sind.
Kassen- und Zahlungsstationen
Zahlungsstationen befinden sich meist in der Nähe des Barbereichs oder der Servicewege. Alternativ können mobile Zahlungssysteme eingesetzt werden, um Laufwege zu reduzieren.
Küche und Vorbereitung
Je nach Konzept umfasst der Bar-Grundriss eine kleine Küche oder Vorbereitungsbereiche für Snacks und Speisen. Wichtig sind klare Abläufe und ausreichend Arbeitsfläche.

Kühlung und Lagerung
Kühl- und Lagerräume dienen der Aufbewahrung von Getränken, Lebensmitteln und Zubehör. Ihre Platzierung sollte kurze Wege zum Barbereich ermöglichen.
Spül- und Müllbereiche
Spülstationen für Gläser und Geschirr sowie Müllbereiche sollten praktisch angeordnet sein, um den Betrieb nicht zu stören.
Büro- und Pausenräume
In größeren Bars können separate Büro- oder Pausenräume für das Personal Teil des Bar-Grundrisses sein.
Tipps für funktionale Bar-Grundrisse
Ein gut geplanter Bar-Grundriss berücksichtigt sowohl Gäste als auch Mitarbeitende.
Form und Größe der Bar
Bars sind häufig gerade, L-förmig oder U-förmig. Die Barplatte ist meist etwa 0,5 bis 0,75 m tief und rund 1,1 bis 1,2 m hoch.
Die Breite hängt von der Größe des Veranstaltungsortes, der geschätzten Menge an Getränken und der Anzahl der Barkeeper ab, die gleichzeitig arbeiten werden.

Bewegungsfreiheit hinter der Bar
Empfohlen wird ein Gang von mindestens 1 m, damit Mitarbeitende problemlos arbeiten können.
Ausstattung einplanen
Dazu gehören unter anderem:
- Abfall- und Reinigungsbereiche
- Eisbehälter
- Gläser- und Garnierungsstationen
- Ablagen für Flaschen
Bau- und Hygienevorschriften beachten
Ein Bar-Grundriss sollte von Anfang an die geltenden Bau-, Sicherheits- und Hygienevorschriften berücksichtigen. Dies erleichtert Genehmigungen und verhindert spätere Anpassungen.
Checkliste für Ihren Bar-Grundriss
✔ Klare Trennung von Gäste- und Servicebereichen
✔ Kurze Laufwege hinter der Bar
✔ Ausreichend Sitz- und Stehflächen
✔ Gut platzierte Toiletten
✔ Deutlich gekennzeichnete Ausgänge

Erstellen Sie Grundrisse im Handumdrehen
Mit RoomSketcher können Sie Grundrisse für jedes Projekt zeichnen, anpassen und visualisieren:
- Zeichnen Sie präzise 2D und 3D Grundrisse in wenigen Minuten
- Passen Sie Möbel, Materialien, Farben und Beschriftungen individuell an
- Arbeiten Sie online oder offline – Ihre Projekte synchronisieren sich automatisch in der Cloud
- Visualisieren Sie Ihre Grundrisse mit 3D Fotos, 360 Ansichten und interaktivem Live 3D
Schließen Sie sich über 10 Millionen Menschen an, die bereits professionelle Grundrisse mit RoomSketcher erstellen.
Verwandte Artikel

Was einen guten Restaurant-Grundriss ausmacht
Grundrisse für Restaurants bilden die Basis für funktionale Abläufe und ein angenehmes Gästeerlebnis. Dieser Artikel zeigt typische Front- und Back-of-House-Bereiche sowie bewährte Layouts. Erfahren Sie, worauf es bei Planung, Abständen und Arbeitswegen ankommt.

Was ein barrierefreies Badezimmer ausmacht
Barrierefreie Grundrisse sind die Grundlage für sichere und komfortable Bäder. Dieser Artikel zeigt, wie Bewegungsflächen, Türbreiten und Sanitärelemente optimal geplant werden, damit Badezimmer rollstuhlgerecht und zukunftssicher gestaltet werden können.

Café-Grundrisse richtig planen: Zonen, Abläufe und Anforderungen
Die Gestaltung des Grundrisses spielt eine entscheidende Rolle für den Erfolg eines Cafés. Ein gutes Layout sorgt für reibungslose Abläufe und ein angenehmes Kundenerlebnis. In diesem Beitrag erfahren Sie, wie Grundrisse für Cafés effizient geplant und kreativ umgesetzt werden können.