Der perfekte Hotelzimmer-Grundriss: Layouts, Größen und Gestaltungsideen
Ein gut geplanter Grundriss für Hotelzimmer ist entscheidend für die Gästezufriedenheit und die optimale Nutzung des verfügbaren Raums. In diesem Artikel geben wir einen Überblick über gängige Hotelzimmergrößen, Zimmertypen und bewährte Grundrisslösungen sowie Tipps zur Gestaltung für unterschiedliche Zielgruppen.

Ein gut durchdachter Grundriss für Hotelzimmer hat erheblichen Einfluss auf die Zufriedenheit der Gäste.
Die Anordnung der Zimmerelemente ist entscheidend dafür, ob sich die Gäste wohlfühlen oder den Raum als beengt und ungemütlich empfinden. Deshalb ist es eine gute Idee, den Gästen vor der Buchung den Grundriss bereitzustellen.
Im Allgemeinen soll der Grundriss eines Hotelzimmers Komfort, Bequemlichkeit und ein Gefühl von "nicht daheim und doch zu Hause" vermitteln.
Alle Gäste schätzen hochwertige Betten, gut durchdachte Beleuchtung und Ablagemöglichkeiten. Aber zu einem hervorragenden Layout gehört mehr.
Wir haben einige Tipps für Hotelzimmer-Grundrisse zusammengestellt, die Ihre Gäste begeistern werden.
Die Bedürfnisse Ihrer Gäste kennen

Berücksichtigen Sie beim Entwerfen des Grundrisses unbedingt die Bedürfnisse Ihrer Zielgruppe.
- Geschäftsreisen
Diese Gäste bevorzugen oft ein komfortables Bett, einen bequemen Arbeitsbereich mit den erforderlichen Stromanschlüssen und eine gute Beleuchtung. Ganzkörperspiegel erlauben einen gründlichen Outfit-Check vor dem Verlassen des Zimmers. - Freizeitreisen
Ort, Aufenthaltsdauer und typische Aktivitäten sind entscheidend beim Entwurf des Grundrisses. - Strand- oder Seeurlaub
Denken Sie an zusätzliche Halterungen für Strandtücher und an einen Ablageplatz für sandige Sachen. - Bergurlaub
Der Eingangsbereich sollte Platz für Skiausrüstung, Wanderschuhe und sperrige Rucksäcke bieten. - Paarurlaub
Diese Gäste bevorzugen vielleicht ein großzügiges Doppelbett und ein luxuriöses Badezimmer. - Familienorientiert
Die Zimmer sollen sowohl für Erwachsene als auch für Kinder gut geeignet sein. Ein oder zwei Doppelbetten, ein Schlafsofa, Zustellbetten und vielleicht ein Kinderbett bieten flexible Schlafmöglichkeiten. Vorteilhaft ist ein Esstisch für Spiele, Snacks und kleine Mahlzeiten auf dem Zimmer. Sorgen Sie für ausreichend Stauraum für Gepäck, Kinderwagen und eventuell für ein Laufgitter.
Zimmertypen und -größen
Es gibt häufig eine Klassifikation für Größe und Ausstattung von Hotelzimmern, die jedoch von Land zu Land variiert. Die durchschnittliche Größe von Doppelzimmern liegt oft zwischen 12 und 26 m² exkl. Bad, je nach Hotelklassifikation.
Hier sind einige übliche Zimmertypen:
Einzelzimmer
Sind für Alleinreisende gedacht, haben meist ein eigenes Bad/WC sowie ein Einzelbett.

Standard Doppelzimmer
Die meisten Hotelzimmer sind als Doppelzimmer geplant. Sie sind für zwei Personen gedacht, haben meist ein Queensize- (140/160 x 200 cm) oder ein Kingsizebbett (180 x 200 cm) und ein eigenes Bad/WC. Zimmer mit zwei getrennten Betten (Twin) werden als Zweibettzimmer bezeichnet.

Juniorsuite
Ist größer und besser ausgestattet als ein Doppelzimmer und bietet separate Sitzgelegenheiten.
Suite
Hat in der Regel ein oder mehrere separate Schlafzimmer, die mit Wohnräumen verbunden sind. Es gibt eigene Toiletten und Badezimmer und meist höhere Ausstattungsstandards.
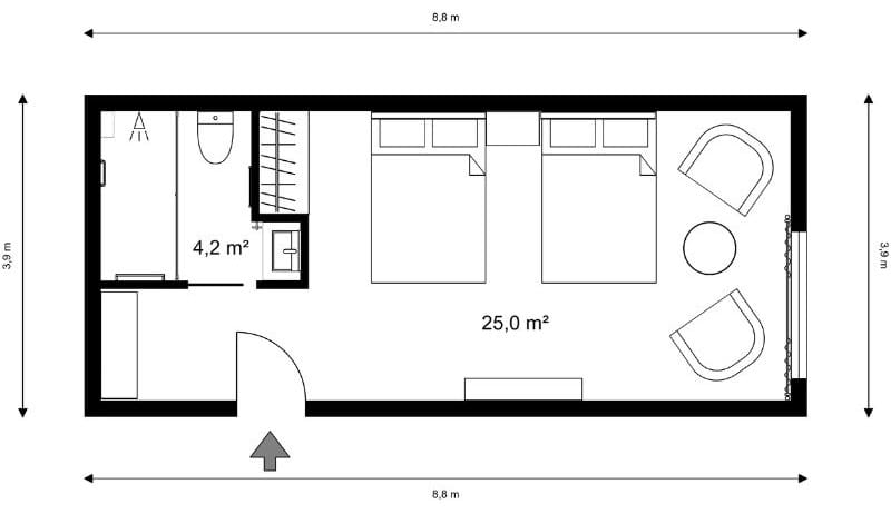
Entwürfe für Hotelzimmer

Ein übliches Hotelzimmer besteht aus einem rechteckigen Raum mit einem Eingang, in dem es einen Kleiderschrank und den Zugang zum Badezimmer gibt. Daran schließt sich der Bereich an, in dem sich auf der einen Seite ein Bett und auf der anderen Seite eine Kommode/ein Fernseher befindet.
Außerdem gibt es Fenster und eventuell einen Balkon. Dieser Grundriss eignet sich gut für ein Hotelzimmer, das etwa 4 m breit ist. Damit bleibt genügend Raum zwischen Bett, Kommode und Fenster.
Neben diesem Standard-Grundriss gibt es eine Vielzahl von Möglichkeiten für die Gestaltung von Hotelzimmern, je nach Form, Größe und Budget.
Beim Entwerfen oder Sichten von Grundrissen sollten Sie folgende Funktionen im Blick behalten.
Schlafen
Ein hochwertiges Bett ist eine der wichtigsten Komponenten eines Hotelzimmers.
Legen Sie die Position des Bettes so fest, dass beidseitig Platz für einen Nachttisch bleibt.
Verdunkelungsvorhänge gehören zur Standardausstattung.

Körper- und Schönheitspflege
Viele Hotels zeichnen sich durch gut gestaltete und sogar Spa-ähnliche Badezimmer aus. Ein Waschtisch mit einer großzügigen Ablagefläche oder ein Waschbecken und Regale bieten Platz für Kosmetiktaschen und Accessoires.
Denken Sie an praktisch platzierte Steckdosen für Rasierapparat oder Haartrockner. Für die Badewanne oder Dusche ist ein Seifenhalter bzw. eine Duschablage erforderlich.
Planen Sie auch Handtuchablage und Handtuchhalter ein. Ein beleuchteter Kosmetikspiegel ist eine gute Idee, ebenso ein Ganzkörperspiegel im Eingangsbereich.

Arbeiten
Für Geschäftsreisende sollte ein Schreibtisch in den Grundriss integriert werden.
Auch andere Gäste benötigen Ladezubehör und mehrere leicht zugängliche Steckdosen.

Essen und Trinken
Häufig gibt es einen Minikühlschrank und eine Kaffeemaschine. Dazu gehört ein kleiner Tisch für eine Mahlzeit zwischendurch oder einen Kaffee. Eine andere Möglichkeit ist ein größerer Tisch, der sowohl als Schreibtisch als auch als Essbereich genutzt werden kann.
Planen Sie mindestens einen oder zwei Stühle ein. Polsterhocker sind praktisch und vielseitig verwendbar.
Beleuchtung
In einem ungewohnten Raum ist gute Beleuchtung wichtig. Achten Sie auf einen Lichtschalter beim Eingang, helle Badezimmerbeleuchtung und Nachttischlampen. Eine Schrankbeleuchtung ist vorteilhaft.
Ablagemöglichkeiten
Denken Sie an Gepäckablagen. Bleiben Ihre Gäste für längere Aufenthalte, ist eine Kommode praktisch. Platz für leere Koffer kann im Schrank eingeplant werden.

Erstellen Sie Grundrisse im Handumdrehen
Mit RoomSketcher können Sie Grundrisse für jedes Projekt zeichnen, anpassen und visualisieren:
- Zeichnen Sie präzise 2D und 3D Grundrisse in wenigen Minuten
- Passen Sie Möbel, Materialien, Farben und Beschriftungen individuell an
- Arbeiten Sie online oder offline – Ihre Projekte synchronisieren sich automatisch in der Cloud
- Visualisieren Sie Ihre Grundrisse mit 3D Fotos, 360 Ansichten und interaktivem Live 3D
Schließen Sie sich über 10 Millionen Menschen an, die bereits professionelle Grundrisse mit RoomSketcher erstellen.
Verwandte Artikel

Was ein barrierefreies Badezimmer ausmacht
Barrierefreie Grundrisse sind die Grundlage für sichere und komfortable Bäder. Dieser Artikel zeigt, wie Bewegungsflächen, Türbreiten und Sanitärelemente optimal geplant werden, damit Badezimmer rollstuhlgerecht und zukunftssicher gestaltet werden können.

Fitness-Studio-Grundrisse richtig planen: Größe, Zonen und Anforderungen
Die Planung eines Fitness-Studios beginnt mit dem richtigen Grundriss. Er sorgt für klare Abläufe, effiziente Nutzung der Fläche und ein angenehmes Trainingserlebnis. Entdecken Sie, worauf es bei der Gestaltung wirklich ankommt.

Was einen guten Restaurant-Grundriss ausmacht
Grundrisse für Restaurants bilden die Basis für funktionale Abläufe und ein angenehmes Gästeerlebnis. Dieser Artikel zeigt typische Front- und Back-of-House-Bereiche sowie bewährte Layouts. Erfahren Sie, worauf es bei Planung, Abständen und Arbeitswegen ankommt.